您好,欢迎访问轩鼎房屋图纸网,轩鼎建筑为您提供新农村房屋设计图、别墅设计图纸以及别墅定制设计与咨询服务。
 
 
  热门搜索:自建房 别墅设计 房屋设计图   
网站首页 图纸大全 定制设计 作品展示 建房图文 联系我们
一层房屋图纸
二层房屋图纸
三层房屋图纸
四层以上图纸
双拼房屋图纸
其他建筑图纸
 
 
 您的位置:首页 ->> 建房图文 ->> 适合南方的三层单户大气别墅,简的欧式风格真的很美!
 
 

适合南方的三层单户大气别墅,简的欧式风格真的很美!

发布时间:2020/8/26 19:44:35 点击数: 2625次 

 适合南方的="://lemeizhai.com" target="_self">三层单户大气别墅简的欧式风格真的很美

三层单户大气别墅

  北方和南方在农村建房方面仍然有很大的不同。中国地大物博,南方热,北方冷,所以农村住宅的设计有很多不同之处。尽管近年来现代化已经进入家庭,在很大程度上缩小了南北住宅的差距,但住宅的形式仍有一些变化。

  南方多雨,所以坡屋顶很常见,因为它们有良好的排水和隔热性能。在北方,有更多的平屋顶,因为北方的农村地区使用这个大的平屋顶来方便地烘干食物。另一个特点是北方喜欢把阳台和露台封闭起来,这样有利于保暖,而南方确实更注重开放,需要更多的室外空间,通风性能也有所提高,以避免雨季潮湿。

  正面效果图

三层单户大气别墅

三层单户大气别墅

  今天,我们向您推荐的是一个适合南方的单户三层别墅。它的外观设计是欧洲风格,它的正面是由淡黄色的砖墙和蓝色的坡屋顶组成。整体效果简单而奢华。室内客厅为两层高空设计,接待客人更加豪华,空间感强。

  鸟瞰图

  该建筑宽13.6米,深12.6米,面积175.88平方米,总建筑面积436.68平方米,建筑高度11.75米,一楼3.6米,二楼3.3米,三楼3.3米。采用砖混结构,主要造价为38-45万元。二楼有一个朝南的阳台,三楼有一个大露台,开放性好,采光性能突出。倾斜屋顶上的老虎窗也为阁楼提供了照明和通风,丰富了外观。这些细节的设计更适合南方的生活习惯。

  背景渲染

  别墅的背面和侧面干净简洁,只有腰线增加了立面的层次感。照明面积大,保证了每个室内空间的亮度。

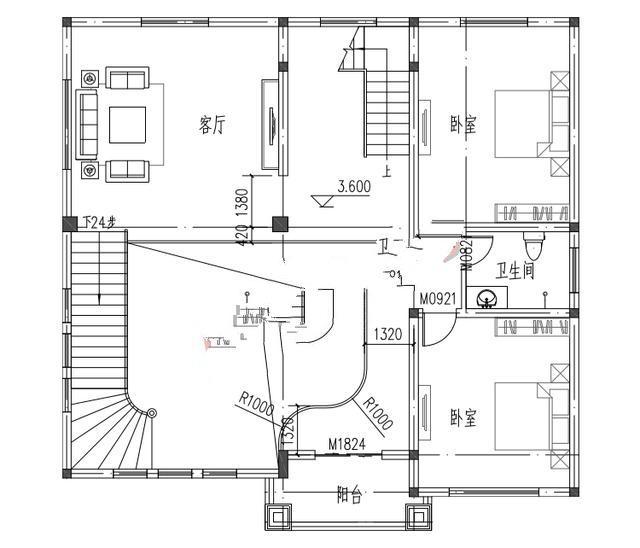
  建筑的平面图

三层单户大气别墅

三层单户大气别墅

三层单户大气别墅

  从南面的正门进入房间,面对主房间,左边是大客厅,格调很高。一楼有两间卧室,北侧的卧室安静而宽敞,有双面照明和步入式衣帽间,可用作老年房间。南边的第二间卧室可以根据主人的要求灵活使用,可以作为客房或仆人的房间。在大楼的东北角,有一个封闭的厨房区,防止油烟进入主房间。此外,餐厅旁边还有一个棋牌室。它非常适合大约35个朋友在闲暇时在这里打麻将。它非常隐蔽,即使噪音很大,也不会传播到其他房间。可以说,设计是极其细心的。

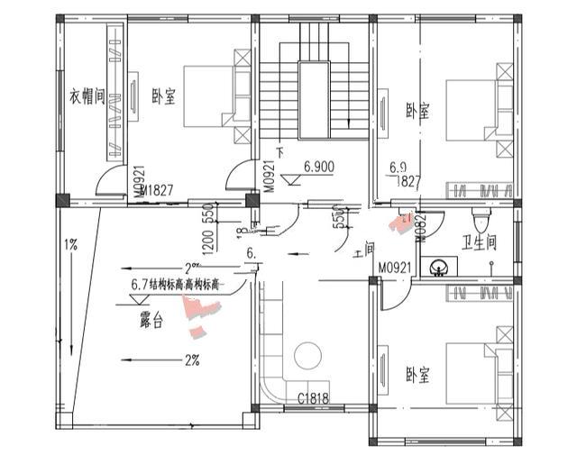
  二楼平面图

  在二楼,从北到南在大楼的东侧有一间卧室。公众在两个卧室的入口处都很方便。二楼楼梯入口处是一个大客厅,可以作为家庭娱乐的空间。

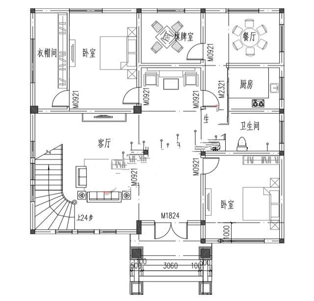
  三层计划

  三楼有三间卧室,这是这个家庭的主要客厅。北面的主卧室有三面照明,有步入式衣帽间和通往大露台的直接通道。中间有一个小客厅,一家人可以随意聚在一起。该方案外观设计豪华、典雅、精致,内部布局更加合理、实用,包括一套完整的施工图。

转载请注明出自轩鼎别墅设计="://lemeizhai.com" target="_self">://www.lemeizhai.com

 
· 新中式别墅四平八稳
· 充分利用了每一寸空间的现代自建...
· 实用乡村两层半自建房房屋设计图...
· 特别紧凑的双层别墅给你和你的家...
· 别墅设计:三层典雅的欧式风格给...
· 2023年不过时的生态木吊顶效果图...
· 大多数农村别墅设计将采用“凸”...
· 屋梁下放东西有哪些禁忌(如何化...
  关于我们 网站事务 帮助中心
客服热线:400-079-6579
客服QQ:10928711 10928755 10928799
地址:山东省潍坊财富大厦1801
 

预定须知
顾客必读
配送方式

 


Copyright 2016 www.lemeizhai.com All Rights Reserved ICP备案序号:鲁ICP备2026012448号-1
轩鼎房屋图纸 电 话:0536-3385581 3385582 传 真:0536-3385581 地 址:山东省潍坊财富大厦1801


keywords:房屋设计图 房屋设计图 农村房屋设计图 农村房屋设计图 建房图文