在农村别墅里建="://lemeizhai.com" target="_self" textvalue="农村自建两三层别墅">农村自建两三层别墅更好吗?读完之后,你就不会再挣扎了
生活在农村的人们了解农村的好空气、新鲜空气、山川河流、绿色无污染的蔬菜和家禽,每天都感受到简单平凡的生活之美。那些进城打拼的年轻人,只有在经历了社会的大熔炉之后,才知道简单是好的。如今,农村基础设施越来越好,不再是一条崎岖泥泞的道路。人们住在漂亮的房子里,吃特别的家乡小吃,穿时髦的衣服。房子是农村人的梦想,拥有自己的房子才是真正的家,这样才能拥有自己的世界,过上舒适的生活。放眼乡村,各种豪华华丽的别墅让人们想拥有它们。现在,申请农村宅基地,为老人、爱人和孩子建造一个理想的家,是男人的责任。最好把别墅盖成两层或三层。有些人觉得三层更宏伟,空间更大,更舒适。这就需要考虑自己的情况,选择一套好的别墅户型,两层楼就能完全满足家庭的幸福生活。
方案一:干净舒适的农村自建住宅设计图纸YH-A-2020
住房概况:享受豪华的风格和优雅的品质。精致的公寓,清晰的空间,舒适的格局。静态和动态分区,干湿分离。主卧室有警卫,有很强的私密性。一楼有一间老人房,方便老人,省去了上下楼的危险和麻烦。独立厨房,干净整洁。卧室与阳台相连,采光效果好。
干净舒适的农村自建住宅设计图
干净舒适的农村自建住宅设计图纸参数



一楼干净舒适的农村自建房屋式设计图
二楼干净舒适的农村自建房屋式设计图
方案二:36万套欧洲自建带车库房屋设计图YH-A-4001
房子的总体情况:公寓类型是井井有条和众所周知的。尊重私人空间,展现尊严和气度。洗澡、上厕所和洗手是三位一体,可以提高利用率而不受干扰。主卧室朝南,采光更好,舒适度更高。明厨房空间合理,采光充足。客人与餐厅的融合增强了空间感,渗透了氛围,享受着优雅舒适的生活。超宽观景阳台和露台,充分利用上层生活的风景,靠近客厅,让空间更自由使用。
36万套欧洲自建带车库房屋设计图
36万套带车库的欧洲自建房屋参数
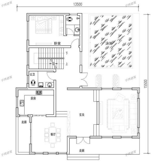
36万套带车库的欧式自建房屋平面图
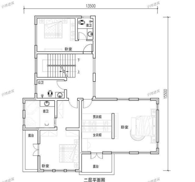
带车库的欧洲自建住宅36万层平面图





360,000套带车库的欧洲自建房屋的三层平面图
带车库的欧洲自建住宅36万层平面图
方案三:个人裁缝设计的153层农村别墅平面图YH-X-3003
住宅概况:个性化公寓设计,紧跟时尚潮流。全明方正豪华公寓,最尊贵的居住模式。全开放式浴室有利于室内通风和防潮。卧室、厨房、浴室等各功能区面积合理,居住体验方便,整体舒适度高。宽阔的客人和餐馆是你的亲戚朋友聚会的快乐场所。主卧室有一个透明空间的衣帽间,充分拥抱阳光生活。个人量身设计的153平农村别墅平面图
个人定制的153平农村别墅平面设计参数




个人裁缝设计了153平农村别墅一楼的平面图
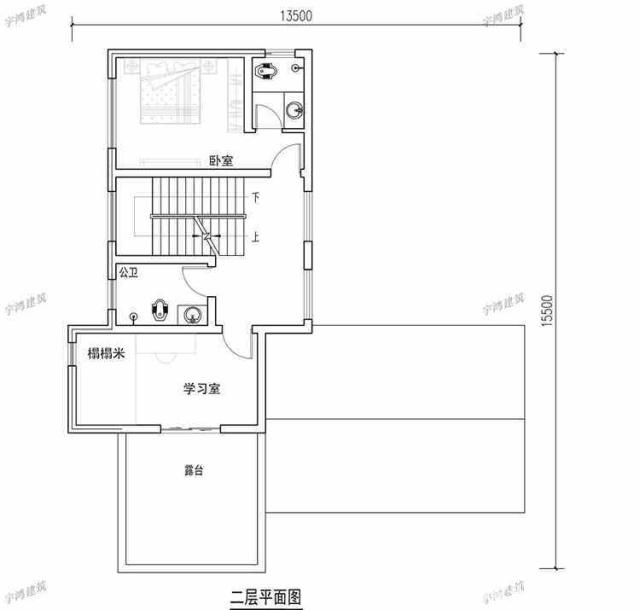
个人裁缝设计的153平农村别墅二楼平面图
个人量身设计的153平农村别墅三层平面图
转载请注明出自轩鼎别墅设计="://lemeizhai.com" target="_self">://www.lemeizhai.com