具有浓郁地域特色的="://lemeizhai.com" target="_self">新亚豪华双层别墅,你会建造吗?
"建筑继承文化,宇宏建立家庭."
你好,欢迎来到宇宏大厦。

新亚洲风格主张以具有浓郁地域特色的传统文化为基础,融入西方文化。现代建筑系植入亚洲元素,对称运用传统意境和现代风格,现代设计隐喻中国传统。在关注现代生活舒适的同时,我们可以继承和发扬传统的亚洲文化。
今天,我们为您带来这座新的亚洲风格的别墅。


虽然只有两层楼高,但整体感觉很古色古香。别墅立面采用米色外墙瓷砖装饰,前后方柱采用真石漆,搭配蓝灰色坡顶。左右两侧有一个小露台,非常有特色。
别墅宽26.9米,深13.5米,面积269.6米。别墅的结构是砖和混凝土,主要成本约为35万。
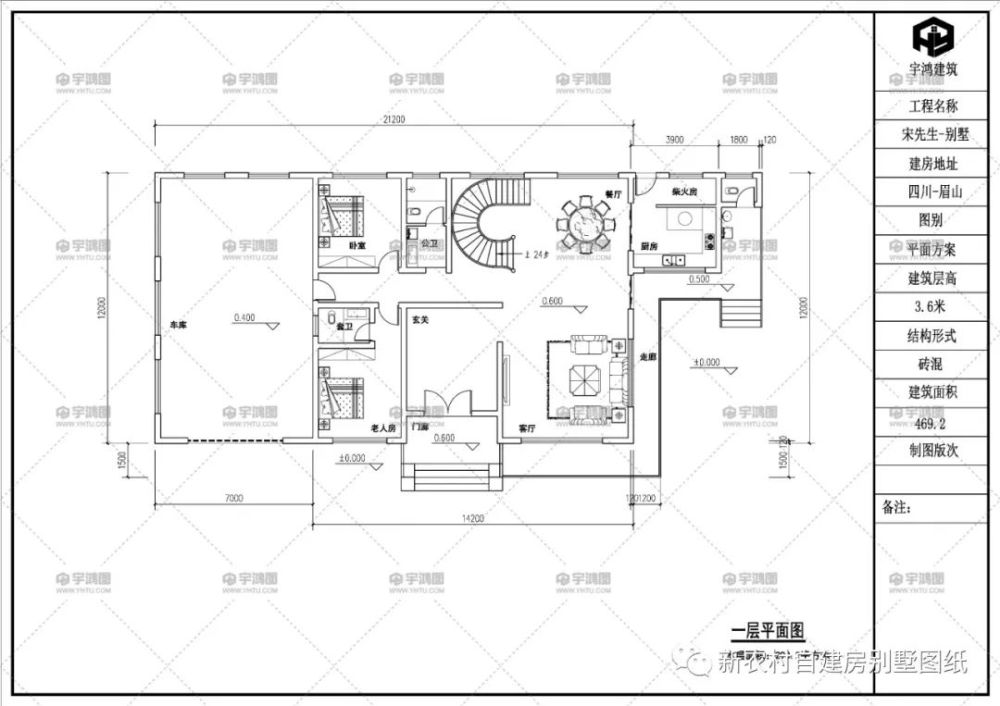
附上平面布置设计图:


在一楼,从门廊到大门的入口是门廊,空的复式客厅设计在右边,然后是餐厅。厨房和柴火房位于右后方,有单独的楼层。从旋转楼梯出来有两间卧室,其中老人房配有独立浴室。寄宿家庭还设计了一个停车库。
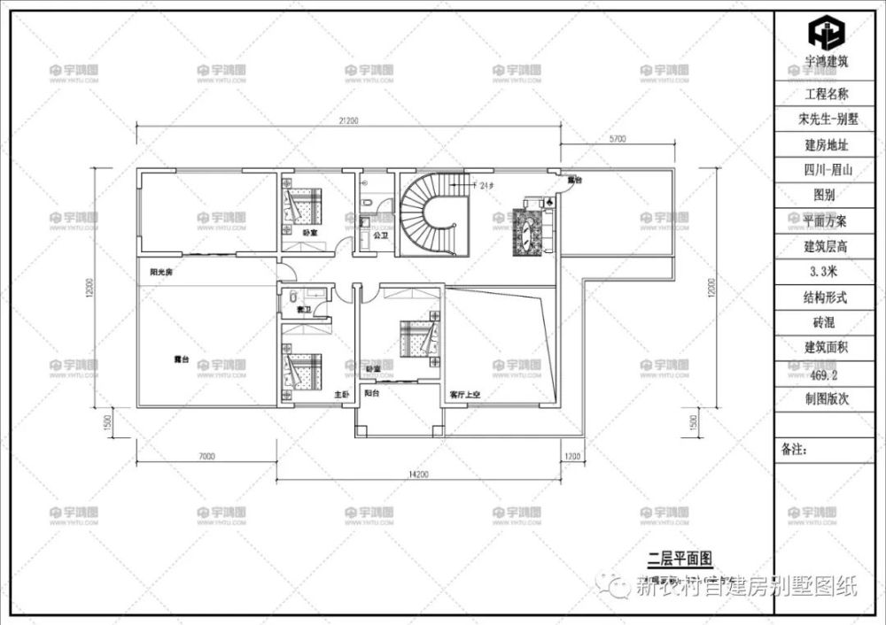
客厅从二楼的螺旋楼梯和厨房上方的露台延伸出来。卧室的布局与一楼相同,只是在门廊上方还有一间卧室。车库的前半部分被设计成一个露台,后面是一个日光室。
这种两层别墅的设计,五间卧室,复式客厅,日光室和阳台是农村地区的最佳搭配。你怎么想呢?
转载请注明出自轩鼎别墅设计="://lemeizhai.com" target="_self">://www.lemeizhai.com