2020最新的农村欧式别墅,8间卧室有车库,想盖房子的人不要错过!

古典欧式经过多年的传承和发展,逐渐形成了风靡现今的简欧风格。 其特点是基于欧式风格,通过高雅华丽的装饰,采用现代手法表现,复杂和隆重少,大气和浪漫多,如清风,给居民以自由的感觉。 简欧风格从整体到局部,从空间到室内装饰,给人以精致的印象,受到现代人的欢迎。
这个颜色组合两层的三层别墅简直是欧式的。

别墅的一层立面采用深褐色真石漆喷涂技术,二层和三层喷涂米白色真石漆,这种颜色相结合,别墅整体的立体色调感很强。
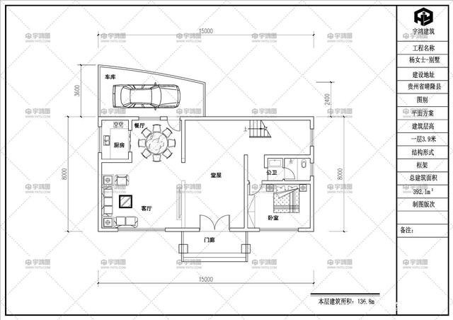
别墅一套开放式房间15米,深8米,占地136.8平方米,建筑结构形式为砖混结构。
一起来看看室内的布局设计吧

上楼梯打开大门是堂堂正正的。 深度只有8米,堂屋右侧设有卧室和公卫,后面有楼梯间。 左边是客厅,还设计了电视墙,旁边有厨房和餐厅。 这样简单的设计在我们现在的城市是普遍的设计。 后面是车库单独制作的。

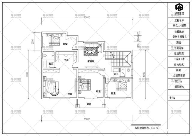
二楼右侧的设计和一楼一样,从楼梯间来到家庭大厅,剩下的是四间卧室,主要睡着很多书房和独立的护卫。

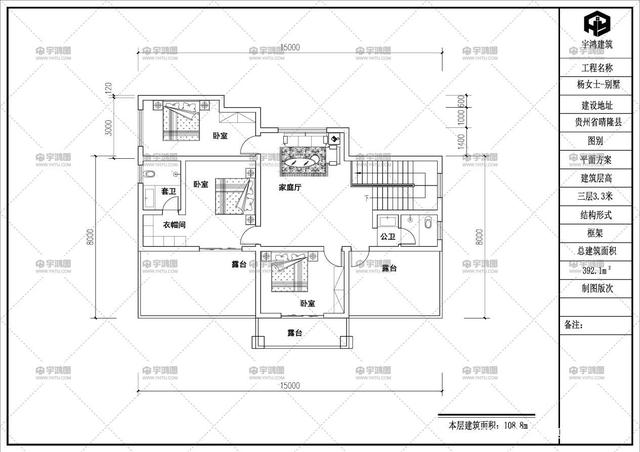
三层楼梯间和公卫设计没有变化,右前方和左前方是两个大面积的露台,剩下三个卧室,其中一个有独立的夹克和兜帽间。
这样面积小的三层别墅,在农村建设还是应该容易的,你们不想来一套吗?
转载请注明出自轩鼎别墅设计="://lemeizhai.com" target="_self">://www.lemeizhai.com