农村的二层现代风格别墅,简单自然,90后的最爱
别墅兴起的今天,现代风格是比较流行的风格,在追求时尚和潮流的同时,以其简约自然清新的使用特点迅速崛起,成为可与欧式、美式等风格相匹敌的主流风格。
今天给大家带来的这座小小的两层简单的别墅是现代风格。

别墅外墙采用白色仿制涂装技术,走廊修建玻璃护栏,二楼组合橡木金外包装,整体水平清晰,多窗式修建改善别墅整体透光性和透气性。

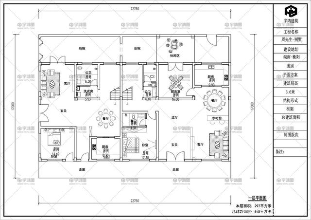
别墅的开放室长22.76米,深17米,占地面积297平方米,是双拼的别墅。
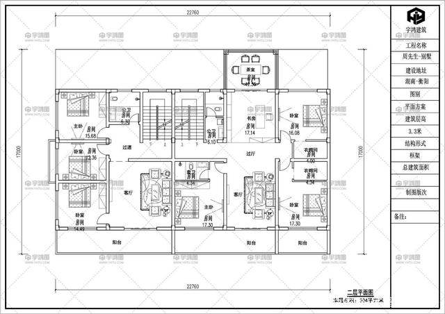
一起来看看平方米的设计布局图纸吧

以左右为界,一层从正中间隔开,右边的大门正面开,大门面向大厅,客厅位于右侧,与水吧、餐厅、厨房相连。 中间有娱乐室,左侧有带独立防护的卧室,后面有楼梯间和公共卫生、洗衣房。 左边少了一个娱乐室,整体布局大致相同。 大门向右开,右面是卧室,左面是客厅,楼梯间面向餐厅。

右边二楼修订了三室一厅,都有食品房,主要卧铺有独立的防护。 客厅的正对面有书房,里面有茶室。 左边的二楼只有三室一厅,共有公共卫生,外面是阳台。
这样修订的双重别墅,成本不高,经济实用,你想要套吗?
转载请注明出自轩鼎别墅设计="://lemeizhai.com" target="_self">://www.lemeizhai.com