有一个小庭院,过着富有诗意的人生,有348最美的新中式别墅

小庭院,竹林摇曳,冬日照暖阳光,夏日听凉风,霞与秋分同在,春天突然来临,这样富有诗意的人生,恐怕总能在农村度过吧。
今天小编向大家介绍了348的新中国式别墅,有一个小庭院,有一个双重结构,不怎么能像诗一样度过人生。

本件设计在广州,该宅基地面积194.65,总建筑面积348.84,砖砌新中式别墅,建于农村,费用53万元。
自制新中式别墅的总平面图


这个宅基地位于丁字路口的尽头,西侧和邻近的住宅隔着人行横道,西南角与邻近庭院的门相邻,东侧也与邻近的住宅相邻,北侧是山林。
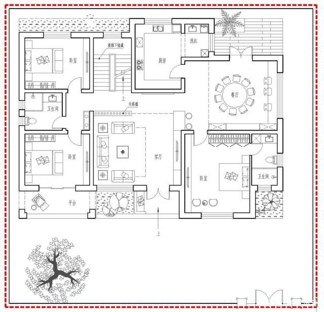
建设新中式别墅的平面图
一楼进入客厅,以打开大窗户的形式迎合大客厅。 餐厅和客厅之间有错位,配备室外平台,饭后散步方便。 一楼共设三间卧室,西侧卧室共用一个厕所,东南角主要卧室配置独卫,面积大,非常适合老年人的房间。
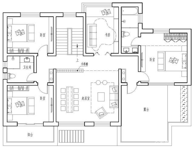
自制新中式别墅二楼平面图


双层平面布局主要以起居为空间功能。 起居室和楼梯之间用软件隔断,进行了明确的空间区分。
想听西侧的卧室配置在一楼,但是在东北角设有主卧铺,还有防止浴池的独立厕所,豪华十足。 书房有大面积的角落窗口,看书总可以侥幸,眺望远山,放松心情。
自制新中式别墅鸟瞰图
为了新中国式的风格,新中国式的风格,中底部用淡黄色的风格提高现代感,用灰瓦和白墙,做成白墙黛瓦的传统风格,兼具别墅整体性和庄重性。
自制新中式别墅鸟瞰图


整个屋顶的坡度虽小,但也出现了中国式的风。 建筑门窗用中国式的要素装饰,用拔模的护栏把阳台和门窗做成古典韵。
自制新中式别墅鸟瞰图
入户空间将景观庭园区和入户区用木格子隔开,在格子上设置小型座椅,便于日常更换鞋子和展望。
自制新中式别墅南侧效果图
庭院的设计以空白为形象,不遮挡室内采光,地面上有石头纹理,配合角落的树木,使空间显得更自然宽敞。 院门风格简单大方,入户体验优良。


转载请注明出自轩鼎别墅设计="://lemeizhai.com" target="_self">://www.lemeizhai.com