适合农村自建的三层简欧别墅,本体成本20万美元,邻居也很羡慕

古典欧式经过多年的传承和发展,逐渐形成了风靡现今的简欧风格。 其特点是基于欧式装饰风格,通过高雅华丽的装饰,采用现代装饰手法表现,复杂和隆重少,大气和浪漫多,清风似的,给居民以自由的感觉。

今天小编给大家带来的这个小三层别墅是简欧风格。
别墅的立面采用白色和砖红仿油漆技术,组合欧式独特的柱子、雕刻要素,背面开了几扇窗户,后门,组合蓝灰色斜面式排水坡顶,外观简单,这种设计简单,但特别实用。
这栋别墅的开放房间有9米,深13.8米,占地面积仅108平方米,机身成本在22-26万美元之间。
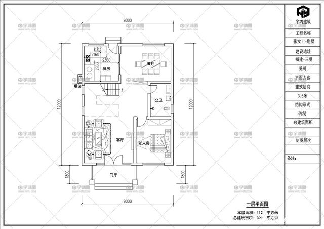
顺便附上平面布局设定修订图纸

一楼从大门进入的是客厅,进去能看见楼梯间,对面是公共卫生,前面是老人的房间,后面是厨房和餐厅,厨房开了后门。

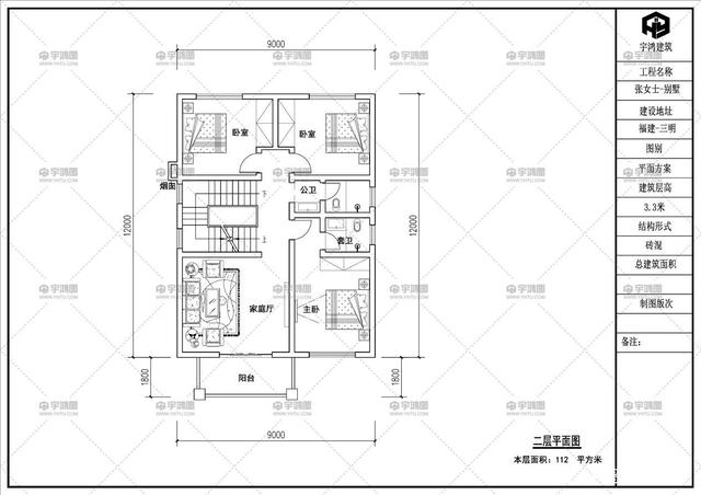
二楼从楼梯间来到三室一厅,设计简单,主要卧铺有独立的护栏,站台厅外有一个小阳台
。
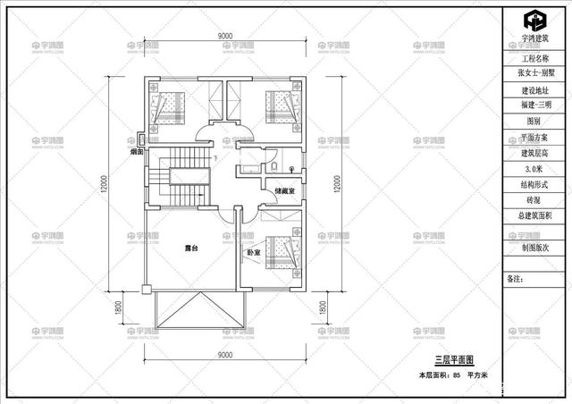
三楼依然是三间卧室,月台上设有大面积的摊位,可以培育绿色,闲暇时坐着喝茶、看书的生活也很舒适。
这座别墅的面积只有100左右,设计布局也很简单,但是住起来也很舒适。 你们说吗
转载请注明出自轩鼎别墅设计="://lemeizhai.com" target="_self">://www.lemeizhai.com