有了这张80平方米的农村自建房设计图,不再害怕建房面积变小了
目前,农村建筑面积有限,许多朋友可能申请的宅基地只有80平方米,令人烦恼。 户型的房子被建了,担心大气不足。 有这样烦恼的朋友,不必担心,下面的小编向您推荐5套不同风格的80平方米农村自建房设计修订图。 你在等什么?
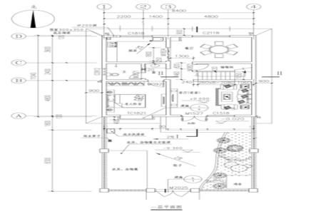
第一套:带露台的自制别墅

图纸编号: zzn0824
别墅风格:现代
占地面积: 84
估计成本: 25万美元
别墅楼层数:二楼
建筑占地面积: 8.4m10.1m
建筑面积: 178
建筑结构:砖结构
功能间:杂货间露台

这是现代风格的二层露台别墅。 别墅的外立面采用红白组合,洋气绯红,非常漂亮。 庭院被铁艺栏杆和红砖围着,很有风格。 走进院门,左边设置农具、垃圾车篷,布置农用工具,便于农民朋友完成农活,放置工具等。 右侧设置自然景观,使庭院更加生动,使房子更加美丽。 上楼梯进门,一楼设有客厅(堂堂)、储藏室、餐厅、厨房、干湿分离的厕所、卧室等。 布局合理,结构正确,户型紧凑。 满足家庭日常生活的需要,接待客人也有面子。

二楼设有三间卧室、独立厕所、储藏室、阳台、大露台等。 露台可以种花草,把房子装饰得更漂亮。 另外,还可以进行家人日常的烧烤、吃饭等,非常适合。 房子设有架空层,可以防止太阳能电池之间,斜面屋顶可以设置太阳能发电板。 住在里面很安心很舒服。
图纸链接:带露台的自制别墅
第二套:8x10三楼带露台的自制别墅

图纸编号: az081
占地面积: 80
别墅楼层数:三楼
建筑占地面积: 8m10.1m
建筑面积: 203
功能间:露台
这是现代风格的三层露台别墅。 外观是小的2个设计,在门头设计山花浮雕,有着更加精致的美丽。 门的一楼设有客厅、厕所、楼梯间、厨房、餐厅、卧室等。 一楼布置简单,结构整齐。 路线清晰,餐厅厨房共用一间,便于饮食。


二楼设有起居室、厕所、卧室夹克室(带开放式试衣室)、二次卧铺等。 二楼的设置也很简单,主要是因为家庭休息,户型虽小,但总体布局简单,使家里更加温暖舒适。 3楼设有可动室、厕所、卧室夹克(带阳台)、大露台等。 3楼的配置适合客房,露台在满足日常洗衣服的同时,也可以作为家庭休闲区使用。
图纸链接:8x10三楼带露台的自制别墅第三套:新中式大厦
图纸编号: AZ691
占地面积: 77
估计成本为: 20万美元
建筑占地面积: 7.4m8.7m
建筑面积: 196
这是现代风格的中式大厦,外立面结合美白色和砖红色采用美丽的外墙,涂料材质,施工简单,而且降低了整体成本,而且不失去整体等级,不失超强的现代感和层次感,简单大方的造型符合80后、90后年轻人的审美。 从石阶进来,一楼设有堂堂、客厅、卫生间、储藏室、楼梯间等。 布局简单,房间设置少,生活空间大。
二楼设有卧室、厕所、阳台等三个。 三楼设有卧室、厕所、露台等两个。 房间内部面积虽小,但能很好地满足农村日常生活的要求。 就算住在里面也很舒服。
图纸链接:新中式大楼

第四套:三楼带车库的自制别墅
图纸编号: zzA011
占地面积: 81
估计成本为: 29万美元
建筑占地面积: 7.8m10.5m
建筑面积: 220
功能间:车库露台书房
这是现代风格的三层带车库的别墅。 由于外墙采用了上白下灰色的黑色,房子看起来非常严峻,可以避免头重脚轻的感觉。 1楼从大门进入,设有客厅、车库、厕所、楼梯间等。 四方结构主要用于接待客人和日常活动。
二楼设有厨房、餐厅、独立厕所、主卧铺、二次卧铺套餐(带阳台)。 二楼主要是家庭的日常活动区域。 厨房和餐厅临近,方便日常饮食。 三楼设有卧室、书房、阳台、厕所、起居室、露台等。 三楼属于休闲区,单独设置书房,便于家人日常学习。 住在这所房子里,面积虽小,却很温暖舒适。
图纸链接:带车库的三层别墅
第五套:9x9三楼带露台的自制别墅
图纸编号: yg1061
估计成本为: 40万美元
建筑占地面积: 9.1m9.3m
建筑面积: 223


这是现代风格的三层露台别墅。 外立面采用白色墙壁,结合黑色窗框和斜坡屋顶,更高雅,古韵充足。 进入门,在入口处设置鞋箱和鞋台,保证家人进入门更换鞋,房间更加清洁。 一楼设有厨房、餐厅、客厅、储藏室、卧室、干湿分离的厕所等。 户型方正,配置比较简单,满足日常待客和家庭生活需求。
二楼设有露台、三间卧室、干湿分离卫生间、休闲厅、储藏室等。 把储藏室设置在楼梯附近,不要浪费空间。 二楼主要是休息区,有休闲大厅,便于家庭日常交往和聊天。 三楼设有主要卧铺、厕所、露台等。 房子面积不大,但五脏俱全,而且布局合理,设计好。图纸链接:9x9三楼带露台的自制别墅
以上是小编推荐的80平方米农村自营设施修订图,都是小户型,但风格不同,经常适合你。 如果有喜欢的东西,可以直接点击上面的图纸链接,了解详情哦
转载请注明出自轩鼎别墅设计="://lemeizhai.com" target="_self">://www.lemeizhai.com