您好,欢迎访问轩鼎房屋图纸网,轩鼎建筑为您提供新农村房屋设计图、别墅设计图纸以及别墅定制设计与咨询服务。
 
 
  热门搜索:自建房 别墅设计 房屋设计图   
网站首页 图纸大全 定制设计 作品展示 建房图文 联系我们
一层房屋图纸
二层房屋图纸
三层房屋图纸
四层以上图纸
双拼房屋图纸
其他建筑图纸
 
 
 您的位置:首页 ->> 建房图文 ->> 自建别墅设计图纸!
 
 

自建别墅设计图纸!

发布时间:2020/9/15 20:29:42 点击数: 2854次 

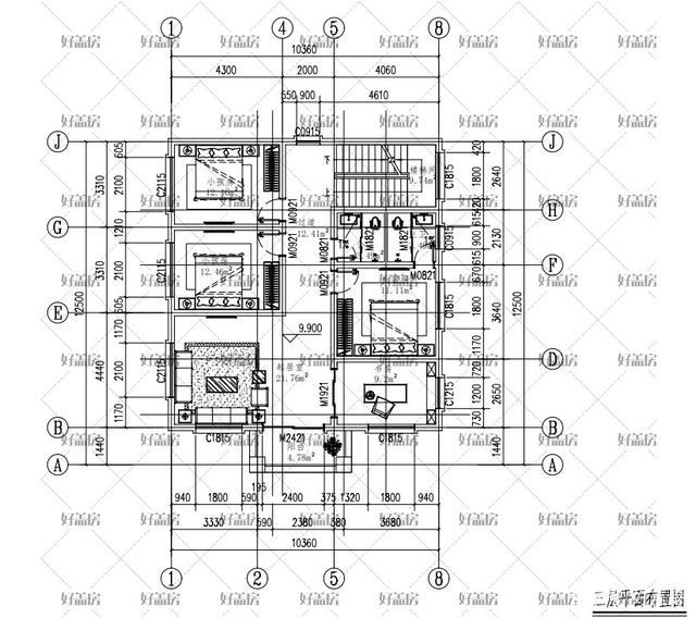
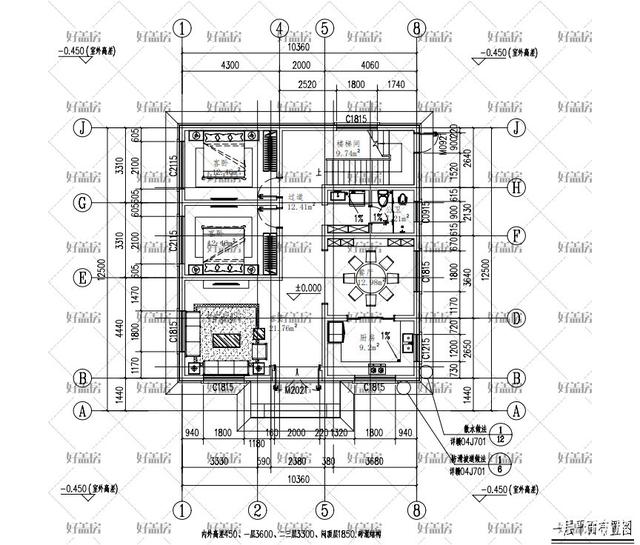
自建别墅设计图纸

自建别墅设计图纸

  现在在自己的家乡改建别墅已经很流行了。 许多以前我在农村去城市赚钱。 另外,因为自己的农村生活条件变好了,想改善自己的条件,所以自己盖别墅的设计图也点燃了。 大家还是把自己爱的房间设计干净吧。 那么,盖个房间,介绍一下比较晚流行的东西

自建别墅设计图纸

自建别墅设计图纸

自建别墅设计图纸

自建别墅设计图纸

自建别墅设计图纸

自建别墅设计图纸

转载请注明出自轩鼎别墅设计="://lemeizhai.com" target="_self">://www.lemeizhai.com

 
· 台上盆和台下盆哪个好 (台上盆和...
· 房屋设计:勾勒生活的诗意轮廓
· 在乡下建造这样一款别墅,日子红...
· 现代风格的别墅,气质真滴杠杠的...
· 可以做商铺的中式别墅,特别有韵...
· 推荐3套新农村设三层自建别墅设...
· 农村自建房屋有了庭院和风景,生...
· 框架结构
  关于我们 网站事务 帮助中心
客服热线:400-079-6579
客服QQ:10928711 10928755 10928799
地址:山东省潍坊财富大厦1801
 

预定须知
顾客必读
配送方式

 


Copyright 2016 www.lemeizhai.com All Rights Reserved ICP备案序号:鲁ICP备2026012448号-1
轩鼎房屋图纸 电 话:0536-3385581 3385582 传 真:0536-3385581 地 址:山东省潍坊财富大厦1801


keywords:房屋设计图 房屋设计图 农村房屋设计图 农村房屋设计图 建房图文