建筑占地尺寸:11.34m(面宽)x12.84m(进深)
建筑层数:三层
屋顶形式:坡屋面
建筑高度:7.6米(含屋顶造型)
参考造价:23万元(框架结构)
准备建造二层的自建房,预算不高的可以选择建这样的,既符合农村人热情好客的生活习性,又能满足自家的居住需求。两层的别墅设计的好,不仅造价低,造型也美观精致,布局兼顾大气和实用,今天给大家分享一款二层农村别墅,户型方正。

户型为两层独栋别墅
一户占地尺寸:11.34m(面宽)x12.84m(进深)
建筑高度7.6米
本户型采用平屋顶与坡屋顶相结合,外观造型高低错落,别致大方,采光通风良好,色彩明快,整体平面布局紧凑、功能分区合理,房间尺度设计适宜,空间利用率高。

建筑情况:
设计功能:
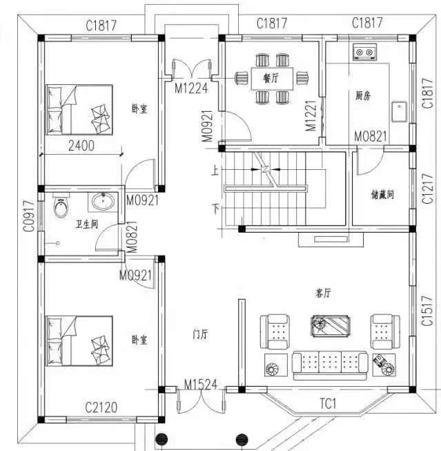
一层设有门厅、客厅、2卧室、餐厅、厨房、卫生间、储藏室;
二层设有主卧室(卫生间)、次卧、卫生间、2露台、花坛。
方案二与方案一相比,方案一适合屋后有车道的宅基地,家庭成员相对较少的业主;方案二空间利用率觉高,适合家庭成员多、喜欢种植花草的业主。
以下图片仅供参考,户型比例都经过处理
(方案二)
一层平面图

二层平面图

转载请注明出自轩鼎别墅设计 ://www.lemeizhai.com/index.asp