您好,欢迎访问轩鼎房屋图纸网,轩鼎建筑为您提供新农村房屋设计图、别墅设计图纸以及别墅定制设计与咨询服务。
 
 
  热门搜索:自建房 别墅设计 房屋设计图   
网站首页 图纸大全 定制设计 作品展示 建房图文 联系我们
一层房屋图纸
二层房屋图纸
三层房屋图纸
四层以上图纸
双拼房屋图纸
其他建筑图纸
 
 
 您的位置:首页 ->> 建房图文 ->> 设计感十足的农村自建房,外观靓丽大气
 
 

设计感十足的农村自建房,外观靓丽大气

发布时间:2021/8/30 19:15:30 点击数: 2313次 

  城市套路深,我要回农村,农村路太滑,人心更复杂。不仅城市现实,现在农村结婚的标配就是房子和车子。这些农村自建房也是越来越美观、设计感越来越强,十足的别墅即视感。那些单调的农村红砖房即将成为历史,取而代之的,是越来越多的,设计别致、外观亮丽的别墅。

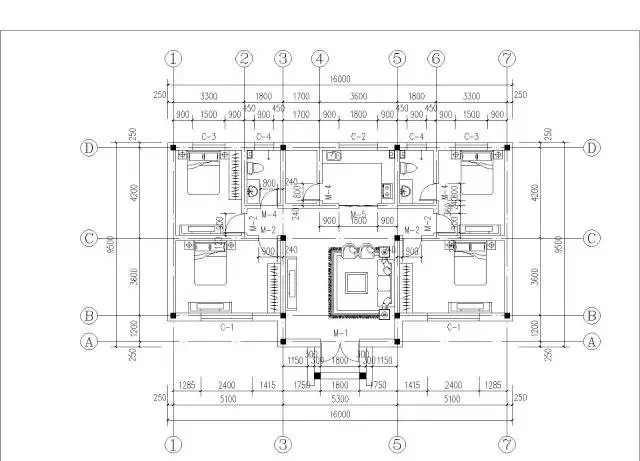
农村别墅基本信息

 占地尺寸:16x10m

 占地面积:160㎡

 建筑面积:148㎡

 建筑情况:4室2厅2卫1厨

 建筑结构:砖混结构

 造价估算:11.8万

新建文件夹mmexport1630322703092.jpg


新建文件夹mmexport1630322705976.jpg


新建文件夹mmexport1630322711380.jpg



新建文件夹mmexport1630322714333.jpg


新建文件夹mmexport1630322717470.jpg


新建文件夹mmexport1630322720256.jpg


转载请注明来自轩鼎建筑设计

www.lemeizhai.com





 
· 即热式热水器优缺点(即热式电热...
· 建房就建这样的别墅
· 设计在建房中重要吗?是的,非常...
· 占地90㎡两层小别墅设计图(附农...
· 这座120层的房子是单独设计的。...
· 设计精美,实用性强的双拼二层别...
· 现代不缺典雅,实用不失美观
· 房子采光标准是什么(如何判断楼...
  关于我们 网站事务 帮助中心
客服热线:400-079-6579
客服QQ:10928711 10928755 10928799
地址:山东省潍坊财富大厦1801
 

预定须知
顾客必读
配送方式

 


Copyright 2016 www.lemeizhai.com All Rights Reserved ICP备案序号:鲁ICP备2026012448号-1
轩鼎房屋图纸 电 话:0536-3385581 3385582 传 真:0536-3385581 地 址:山东省潍坊财富大厦1801


keywords:房屋设计图 房屋设计图 农村房屋设计图 农村房屋设计图 建房图文