家,不仅仅是一间房子,组成家最重要的元素是一家人整整齐齐的,用心去经营的亲情,因为这种爱,所以我们感到温暖,家是人生永远的避风港。这款客户定制的三层欧式="://www.lemeizhai.com/Picture.asp?PicClassID=91" target="_self">别墅设计,占地方正,布局实用上档次,在家里盛放下一家人的喜怒哀乐。
图纸效果:

基本信息:
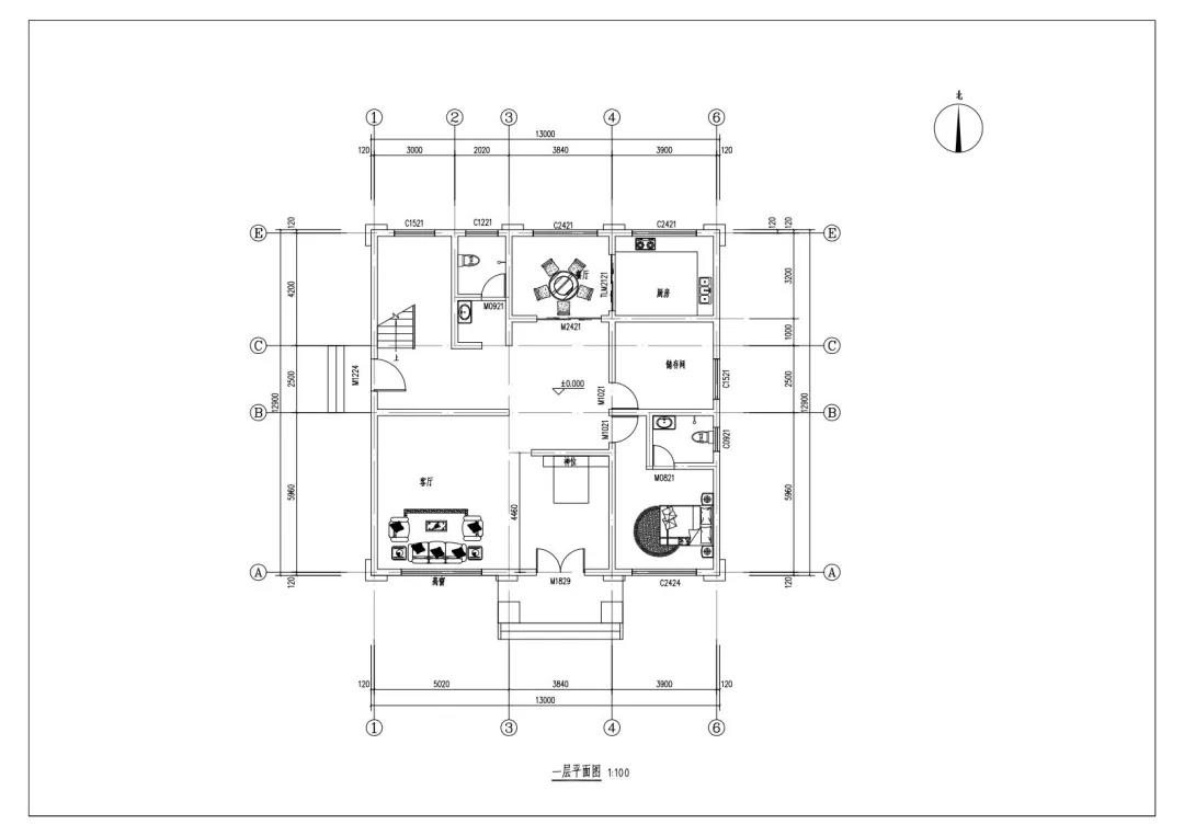
开间:13米
进深:12.9米
占地面积:167平方米
建筑面积:456平方米
建筑层数:三层
建筑结构:砖混结构
主体造价:55万元(仅供参考)
室内布局:

一层平面图:客厅、餐厅、厨房、2卧室、2卫生间。

二层平面图:客厅、3卧室、2卫生间、阳台。

三层平面图:3卧室、卫生间、露台。
转载请注明出自轩鼎别墅设计:://www.lemeizhai.com/index.asp