在快节奏生活的今天,我们越来越向往能有一个宁静舒适的地方,来抚慰忙碌、紧张的心。返乡建栋别墅,享受自然赐予的美好。今天这款的二层现代风="://www.lemeizhai.com/search.asp?SearchType=Software&imageField.x=38&imageField.y=14&SearchKey=%CF%D6%B4%FA" target="_self">别墅设计,简约时尚,住着及其享受。
图纸效果:

基本信息:
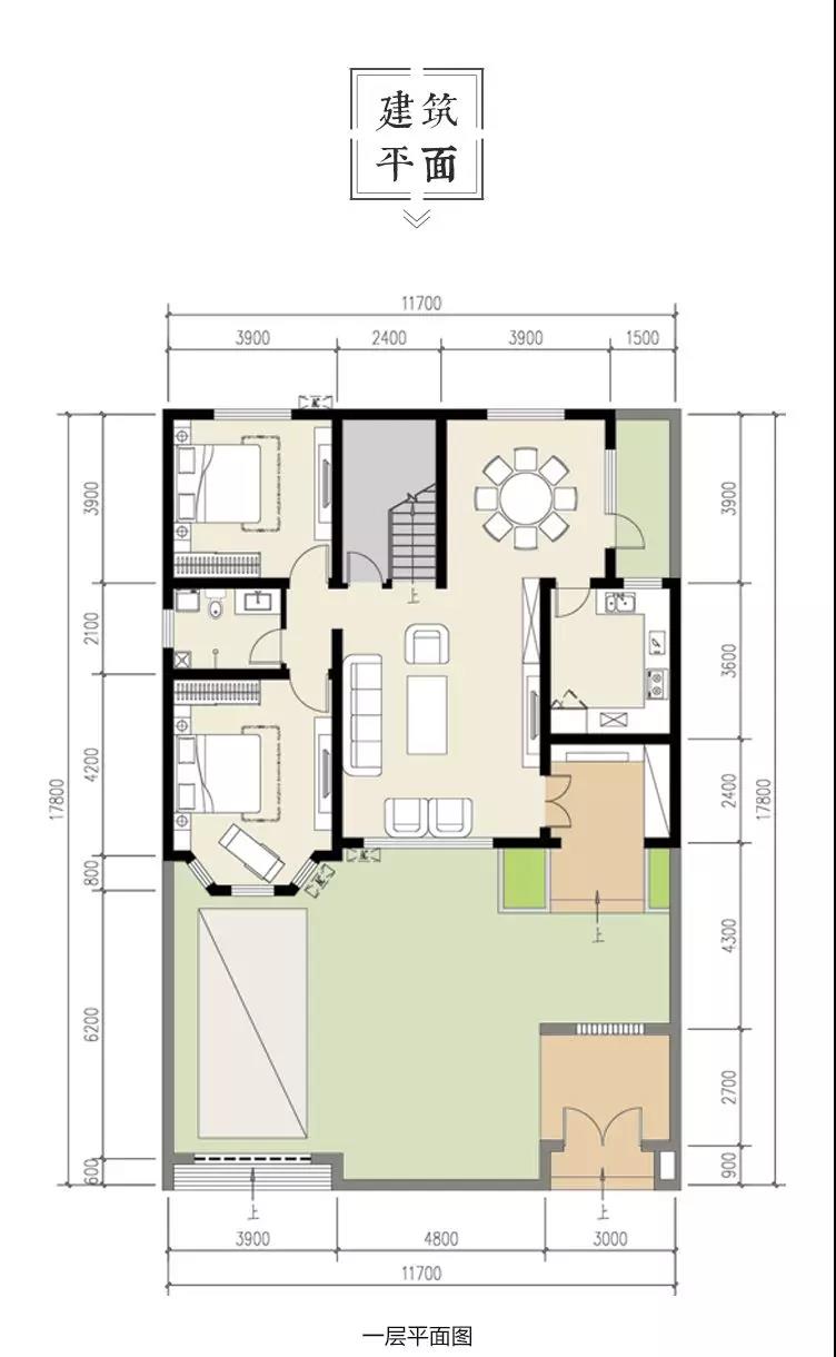
开间:11.7米
进深:17.8米
占地面积:208平方米
建筑面积:256平方米
层数:2层
建筑结构:砖混结构
屋顶形式:坡屋顶
造价:40万左右

室内布局:

一层入户有玄关隔断,客厅非常宽敞,通透的大开间,采光通风视线开阔。

二层为主要居住空间,有起居室和4间卧室,能满足一家人的使用需求。
转载请注明出自轩鼎别墅设计:://www.lemeizhai.com/index.asp