每种不同风格的别墅各有不同,欧式风格有它的庄重大气,而中式风格就显得更精美秀丽。无论喜欢什么样的款式,什么样的户型,关键在于它的实用性,是否符合自己的需求。今天这款一层新中式="://www.lemeizhai.com/" target="_self" style="text-decoration: underline; font-size: 24px; font-family: 楷体, 楷体_GB2312, SimKai;">别墅设计推荐给大家,特别适合父母养老用
图纸效果:

基本信息:
建筑风格:中式
建筑结构:砖混结构
层数:一层
参考造价:22.0万元



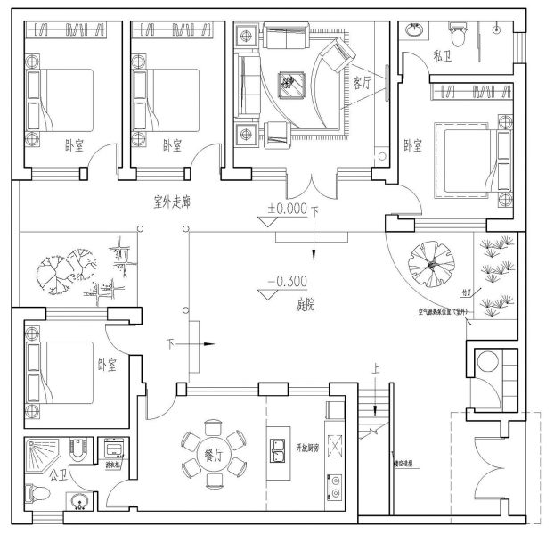
室内展示图:

一层:入门是庭院,客厅在正中,设开放式厨房;四个卧室俩厕所。
转载请注明出自轩鼎别墅设计:://www.lemeizhai.com/index.asp