在城里不说买套商品房要多少钱,光买一个车位一般都要10万、20万,这样对比起来,还是老家有地的花个商品房的首付就能建一套小别墅,今天给大家介绍的这套新户型,不仅外观美观大方,而且主体造价也不高,25万就能建
图纸效果:



基本信息:
建筑风格:欧式
建筑结构:砖混结构
层数:="://www.lemeizhai.com/Picture.asp?PicClassID=88" target="_self" style="text-decoration: underline; font-size: 24px; font-family: 隶书, SimLi;">二层别墅设计
参考造价:22.8万元
屋顶形式:坡屋顶
开间:13.3m
进深:11.7m
占地面积:155.61㎡
建筑面积:280㎡
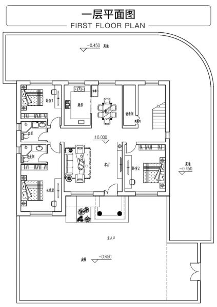
室内展示图:

一层:庭院、门厅、客厅、 厨房、餐厅、卧室、卫生间。

二层:书房、起居室、卧室、露台。
转载请注明出自轩鼎别墅设计:://www.lemeizhai.com/index.asp