衣食住行,住房是人一辈子的事情,有了房子家才有港湾,有钱农村就建一栋别墅。今天这款二层新中式="://www.lemeizhai.com/Picture.asp?PicClassID=88" target="_self" style="font-size: 24px; text-decoration: underline;">别墅设计推荐给大家,40万左右的造价基本可以承担,别墅整体配色简洁时尚,建房就选它。
效果图:

基本信息:
别墅层数: 二层
别墅风格: 中式
占地面积:162㎡
开 间:13.9m
进 深:11.7m
建筑占地:13.9m×11.7m
建筑面积:246㎡
预估造价:40.0万
建筑结构:砖混结构
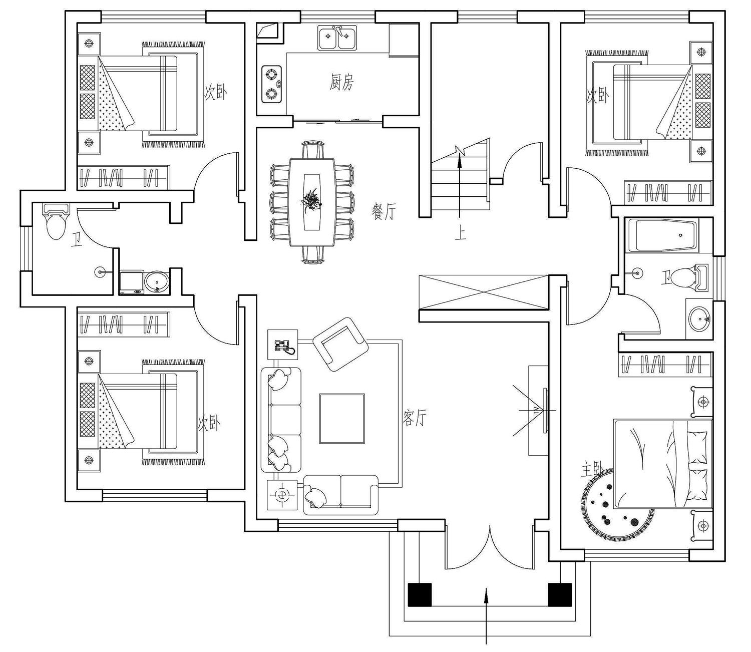
室内展示图:

主体布置如下:玄关、客厅、餐厅、厨房、卫生间、卧室、棋牌室、露台。

转载请注明出自轩鼎别墅设计:://www.lemeizhai.com/index.asp