杨总的宅基地面积比较大,但需要留个院子,所以房屋占地面积为11m×11m,962.17㎡,共六层高。进门是一个大客厅,平时是接待客人,孩子玩耍都能有足够的空间。一个卧室,方便老人的日常起居,不用爬楼梯,餐厅厨房一应俱全每层都有。楼梯旁的储藏室可以放很多杂物。今天这款六层="://www.lemeizhai.com/search.asp?SearchType=Software&imageField.x=29&imageField.y=49&SearchKey=%C1%F9%B2%E3" target="_self" style="font-family: 楷体, 楷体_GB2312, SimKai; font-size: 20px; text-decoration: underline;">别墅设计推荐给大家
效果图:

基本信息:
别墅层数: 五层以上
别墅风格: 现代
占地面积:121㎡
开 间:11m
进 深:11m
建筑占地:11m×11m
建筑面积:962.17㎡
预估造价:147.0万
建筑结构:框架结构

室内展示图:

一层平面图:玄关、客厅、餐厅、厨房、卧室、公卫、茶室。

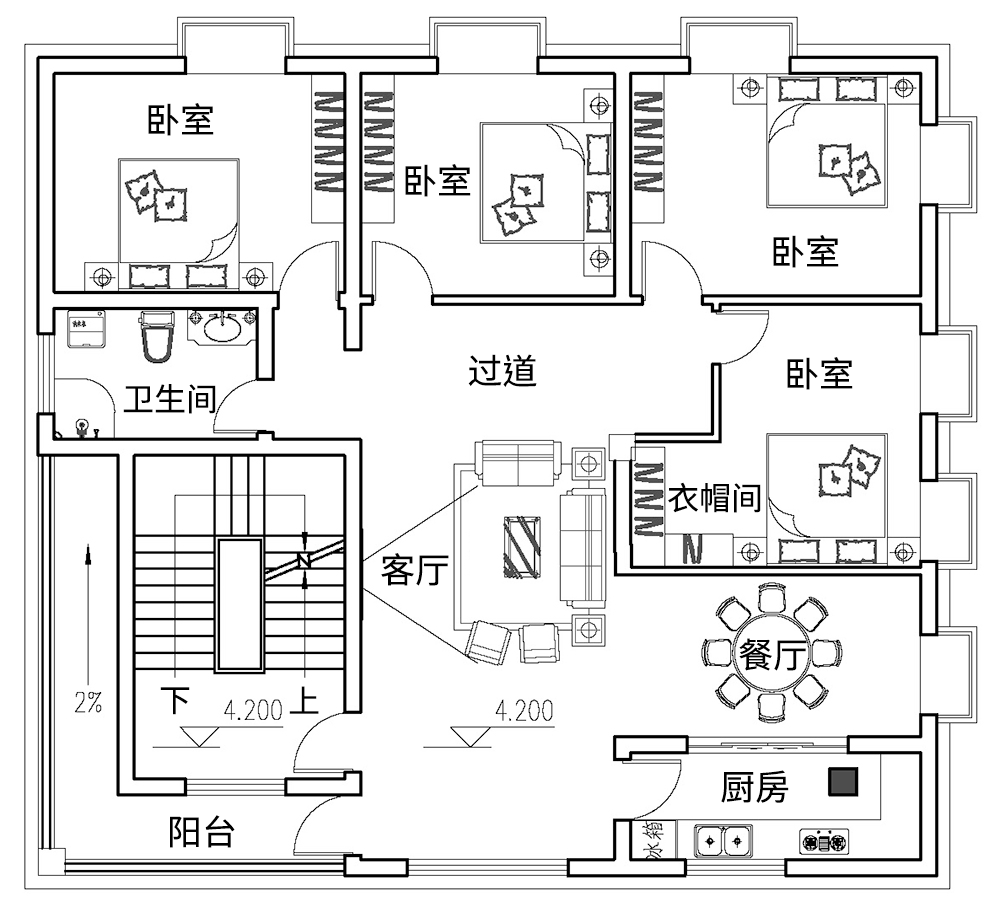
二层平面图:起居室、4间卧室、、餐厅、厨房公卫、阳台。

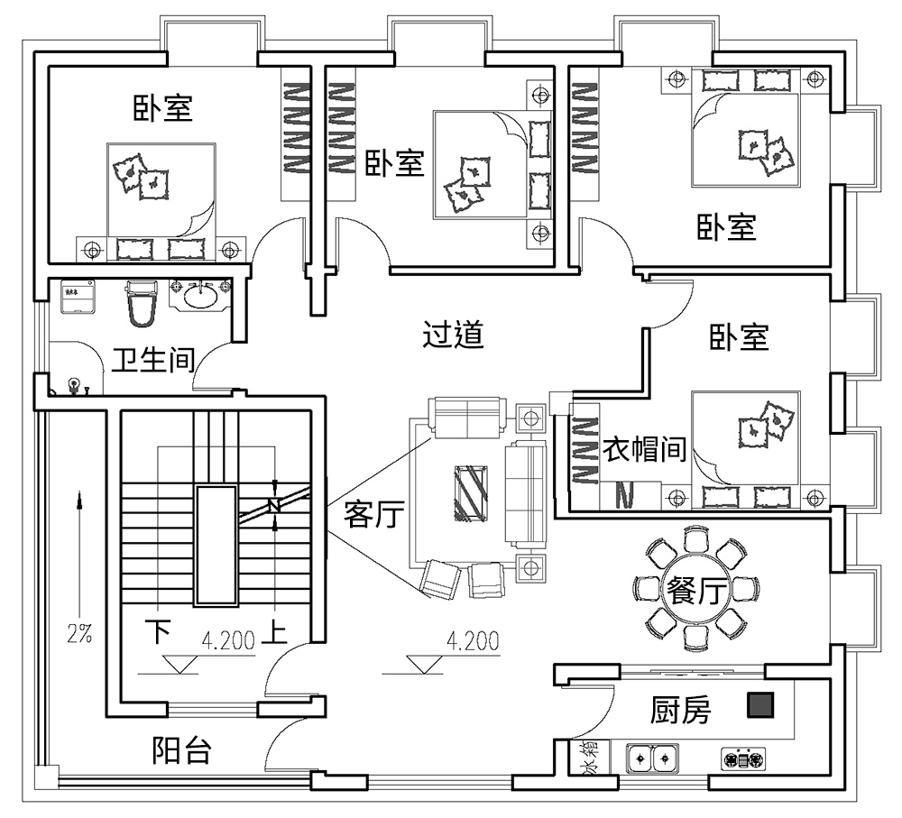
三层平面图:起居室、4间卧室、公卫、阳台。

四层平面图:起居室、4间卧室、公卫、阳台。

五层平面图:起居室、4间卧室、公卫、阳台。

六层平面图:起居室、4间卧室、公卫、阳台。7层是露台
转载请注明出自轩鼎别墅设计:://www.lemeizhai.com/index.asp