今年二月,广东欧总通过电话方式联系到我们。简单沟通过后,与工作人员互加了微信。欧总需要一款三层13m×10.8m的户型图,客服小姐姐推荐了几款成品户型,对于尺寸 欧总有自己的要求,便选择一对一设计一款属于自己的豪宅。今天这款欧总定制的="://www.lemeizhai.com/Picture.asp?PicClassID=91" target="_self" style="font-size: 24px; text-decoration: underline;">三层别墅设计推荐给大家
效果图:

基本信息:
别墅层数: 三层
别墅风格: 欧式
占地面积:140㎡
开 间:13m
进 深:10.8m
建筑占地:13m×10.8m
建筑面积:421㎡
预估造价:80.0万
建筑结构:砖混结构


室内展示图:

一层平面图:玄关、客厅、餐厅、厨房、卧室、公卫。

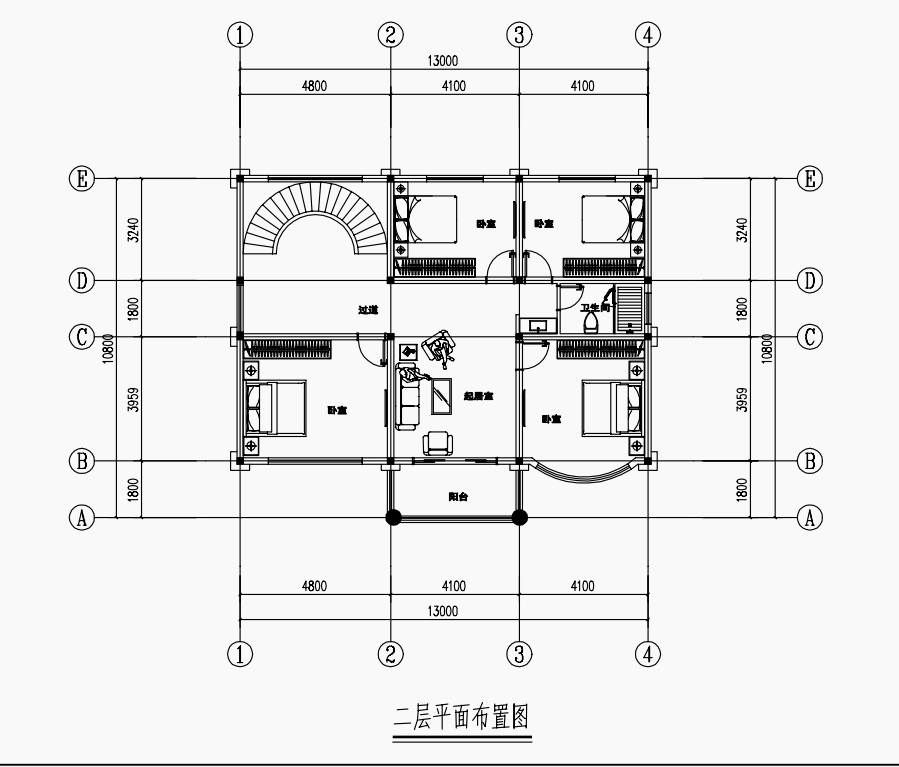
二层平面图:起居室、4间卧室、公卫、阳台。

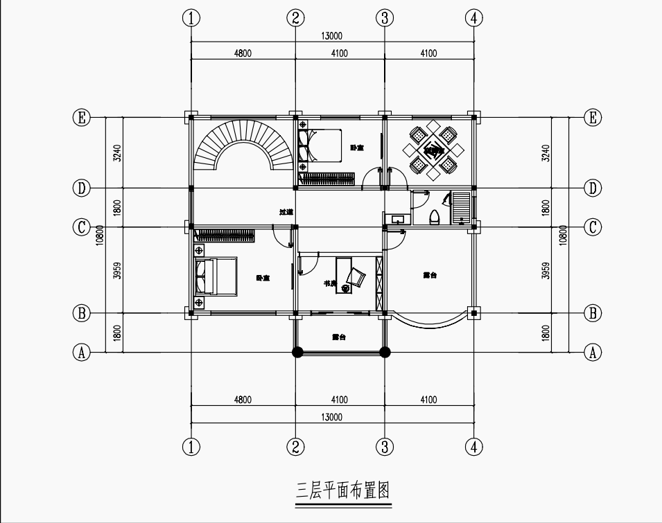
三层平面图:2间卧室、书房、棋牌室、阳台、露台。
转载请注明出自轩鼎别墅设计:://www.lemeizhai.com/index.asp