农村的老式房屋已满足不了现代人的需求,传统的房屋布局可以放弃。一套完整的别墅图纸就能有一栋特别符合现代人们需求二层别墅,今天小编就推荐一款给大家瞧瞧。

图纸介绍:
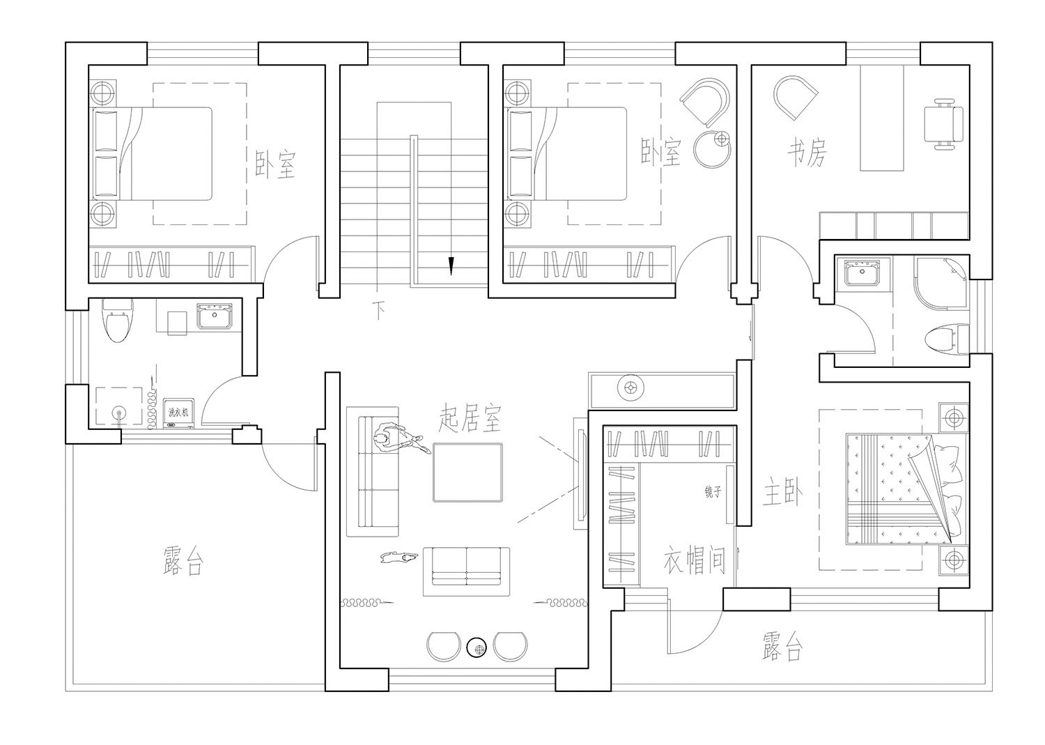
一切设施齐全每一层都有厕所,淋浴电视各种设备都可以安装,电气线路安全可靠。别墅是经典的欧式田园风="://www.lemeizhai.com/Picture.asp?PicClassID=88" target="_self" style="font-size: 24px; text-decoration: underline;">二层别墅设计,是本公司的经典之作。
设计功能:
别墅层数: 二层
别墅风格: 欧式
占地面积:157㎡
开 间:15m
进 深:10.5m
建筑占地:15m×10.5m
建筑面积:286㎡
预估造价:42.0万
建筑结构:砖混结构


主体设计:

客厅、餐厅、厨房、卧室、公卫、阳台、露台。

。
="://www.lemeizhai.com/index.asp" target="_self" style="font-family: 楷体, 楷体_GB2312, SimKai; font-size: 24px; text-decoration: underline;">转载请注明出自轩鼎别墅设计:://www.lemeizhai.com/index.asp