正月十五是与家人团聚的日子,闹花灯、看舞龙是最后一个热闹的节日,和家人团聚其实也离不了一栋好房子,好的住宿条件更能激发对于家的留恋。今天轩鼎给大家推荐一款温馨舒适的="://www.lemeizhai.com/Picture.asp?PicClassID=91" target="_self" style="font-size: 24px; text-decoration: underline;">三层欧式农村自建房设计图

别墅层数: 三层
别墅风格: 欧式
占地面积:135㎡
开 间:12m
进 深:11.3m
建筑占地:12m×11.3m
建筑面积:410㎡
预估造价:80.2万
建筑结构:框架结构


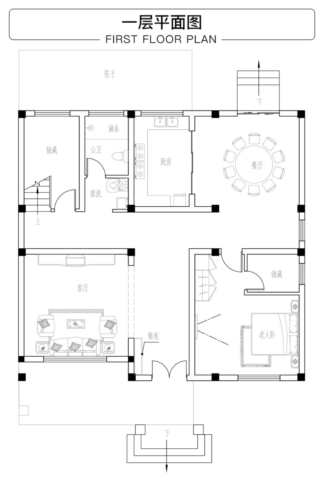
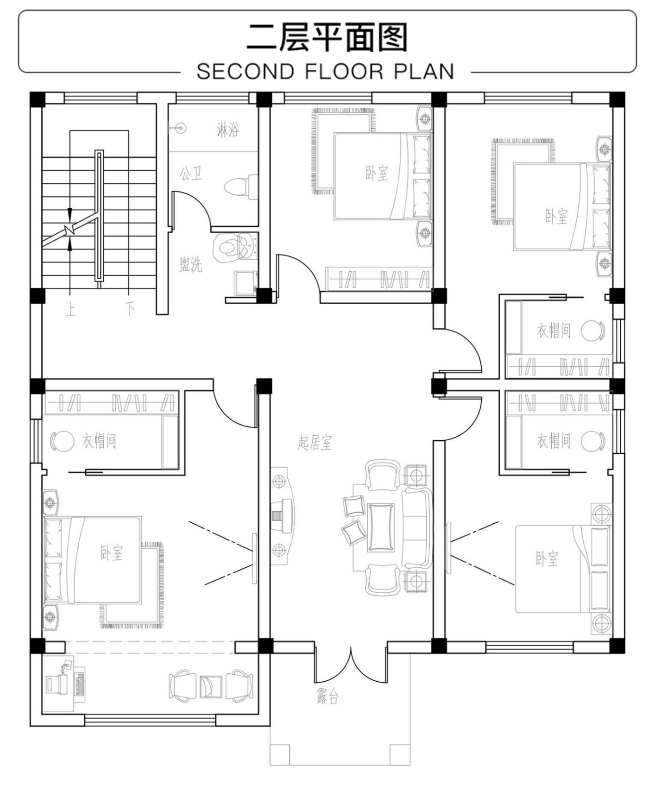
主体设计:

客厅、餐厅、厨房、卧室、公卫、阳台、露台。

。

="://www.lemeizhai.com/index.asp" target="_self" style="font-family: 楷体, 楷体_GB2312, SimKai; font-size: 24px; text-decoration: underline;">转载请注明出自轩鼎别墅设计:://www.lemeizhai.com/index.asp