农村自建别墅已经越来越受欢迎了,很大一部分原因是国家富强了,老百姓口袋里有钱了。在南方三层自建房很是普遍,今天给北方网友推荐一款适合在北方建造的="://www.lemeizhai.com/Picture.asp?PicClassID=91" target="_self" style="font-size: 24px; text-decoration: underline;">三层别墅设计

别墅层数: 三层
别墅风格: 现代
占地面积:132㎡
开 间:12.9m
进 深:10.3m
建筑占地:12.9m×10.3m
建筑面积:320㎡
预估造价:51.0万
建筑结构:其他结构

主体设计:

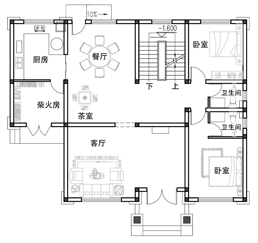
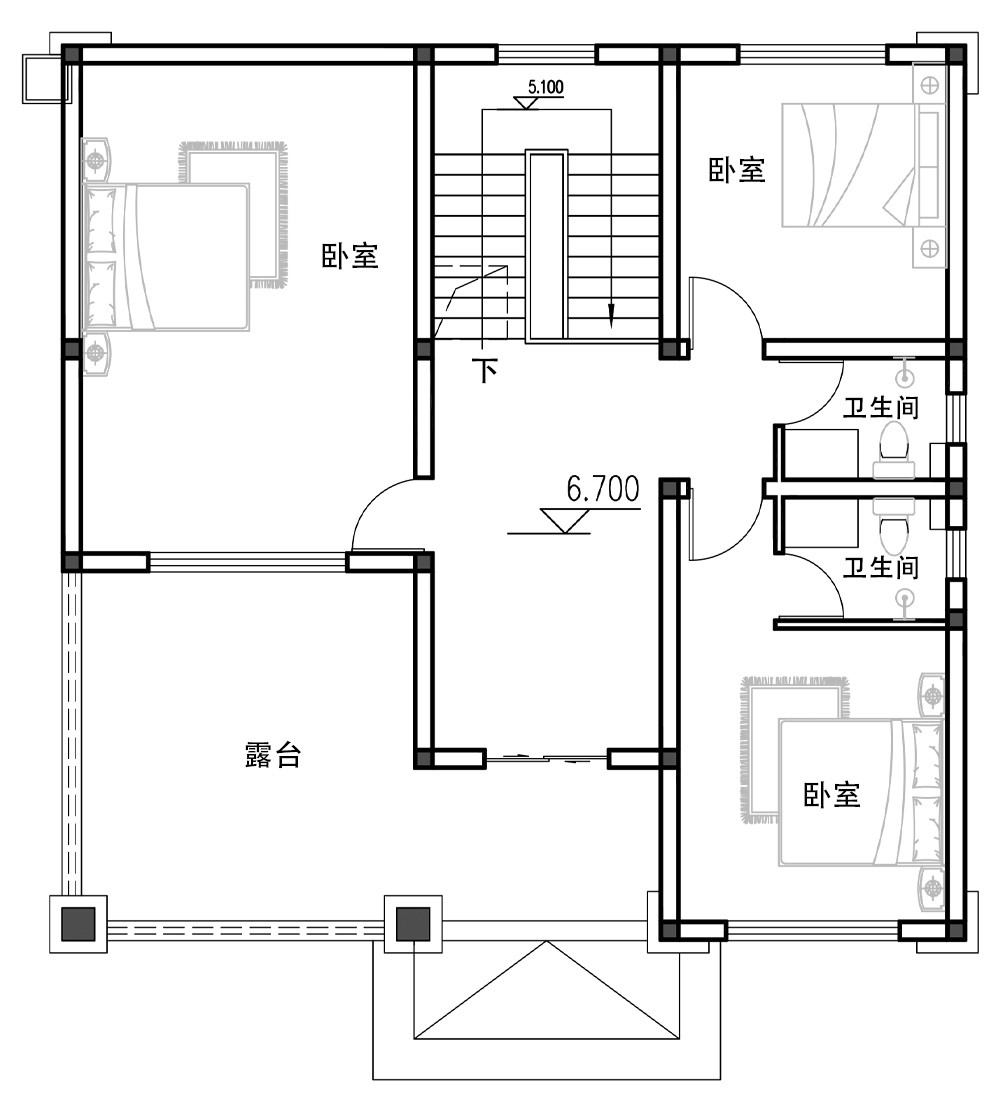
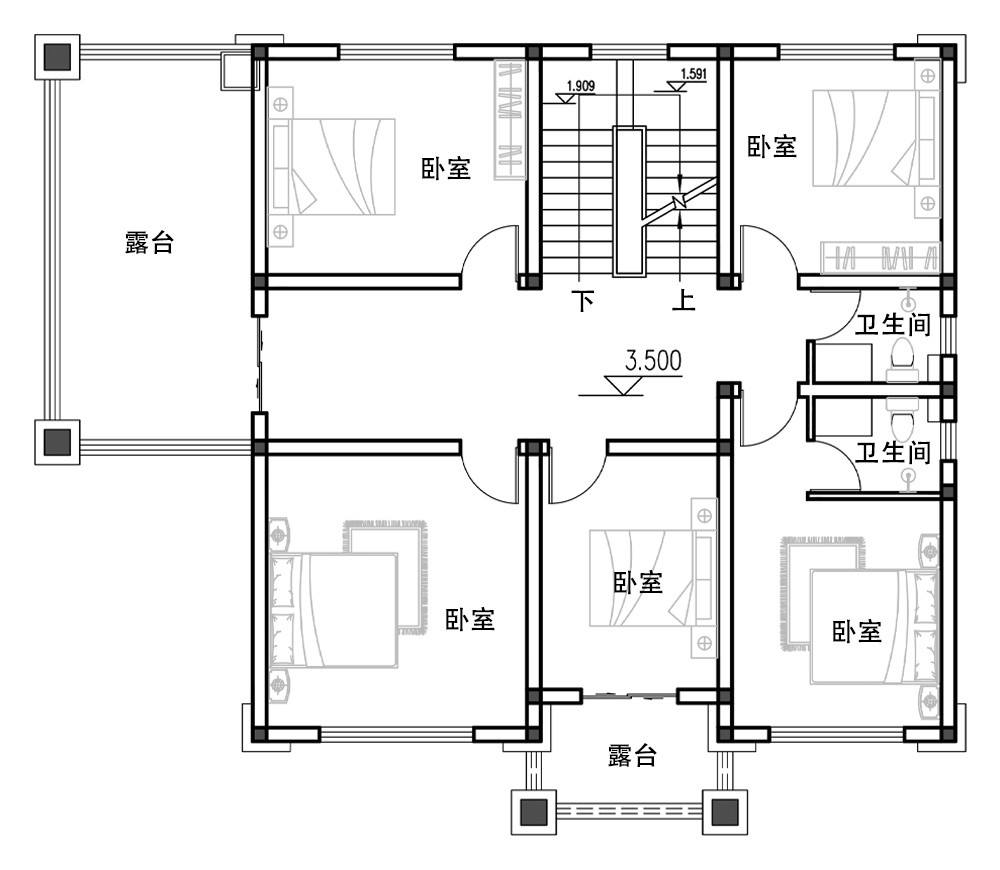
客厅、餐厅、厨房、卧室、公卫、阳台、露台。

。

转载请注明出自轩鼎别墅设计:://www.lemeizhai.com/index.asp