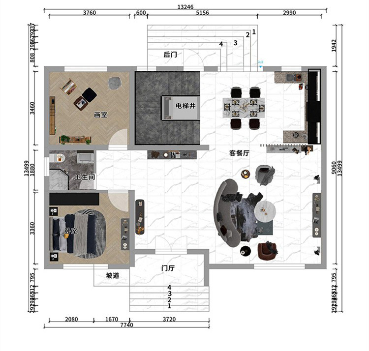
越是有钱人就越是懂得生活,衣食住行都是最好的,住的房子都是小别墅。今天小编给大家介绍河北梁先生定制的="://www.lemeizhai.com/Picture.asp?PicClassID=91" target="_self">三层别墅设计,梁先生是一位画家,因此专门设计了一间画室。

别墅层数: 三层
别墅风格: 现代
占地面积:129㎡
开 间:13.2m
进 深:10.3m
建筑占地:13.2m×10.3m
建筑面积:345㎡
主体造价:30.0~35.0万
建筑结构:砖混结构


主体设计:

客厅、餐厅、厨房、卧室、公卫、阳台、露台。

。

="://www.lemeizhai.com/index.asp" target="_self">转载请注明出自轩鼎别墅设计:://www.lemeizhai.com/index.asp