中国园林数苏州园林最为著名,不论是历史还是规模都是一绝。今天小编就推荐一款园林风格的新中式="://www.lemeizhai.com/Picture.asp?PicClassID=91" target="_self">别墅设计,这款别墅绝对算得上精品既有古典韵味又融合了现代现代

别墅层数: 三层
别墅风格: 中式
占地面积:178㎡
开 间:15.9m
进 深:11.2m
建筑占地:15.9m×11.2m
建筑面积:368㎡
主体造价:51.0~56.0万
建筑结构:砖混结构



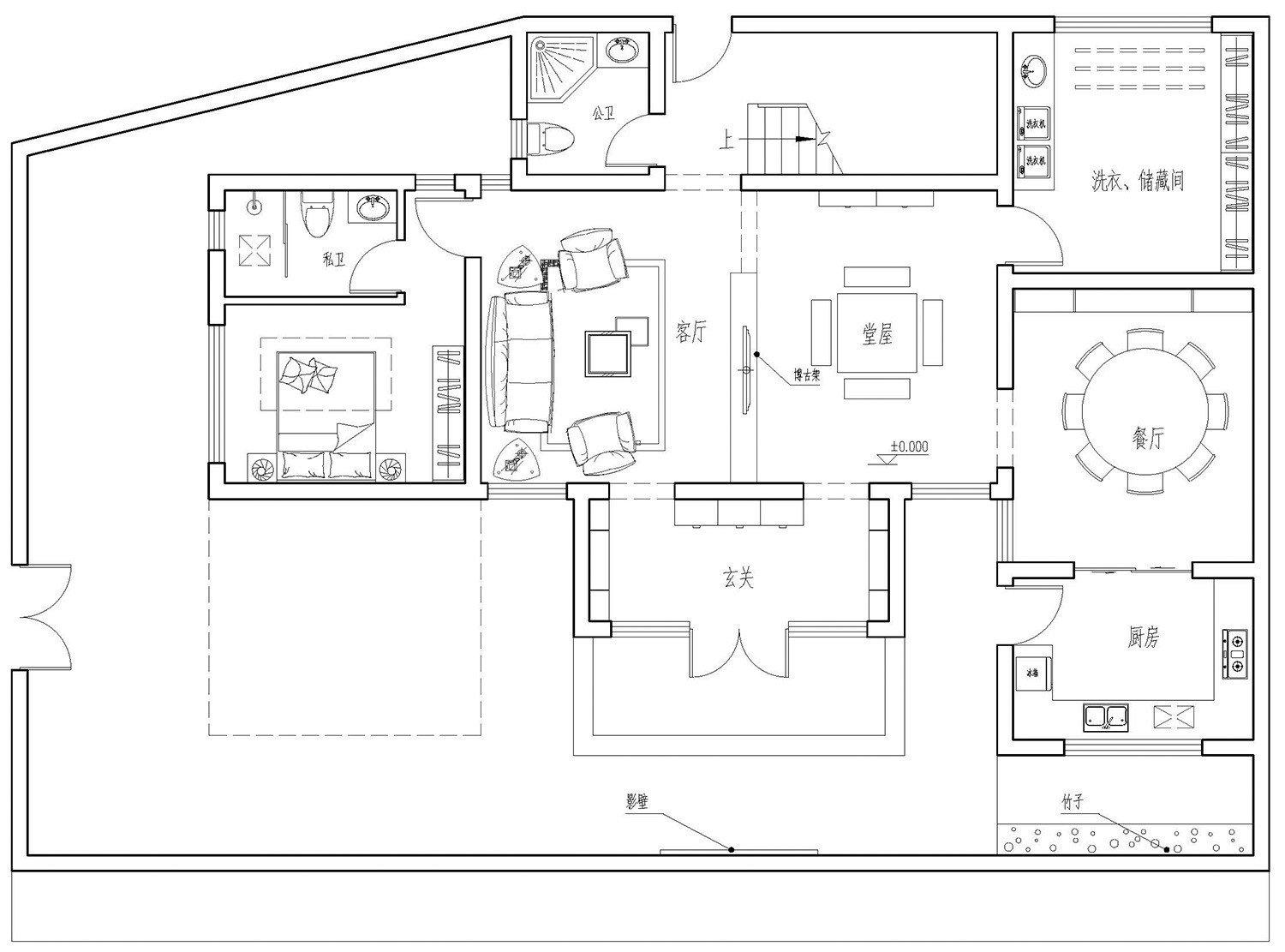
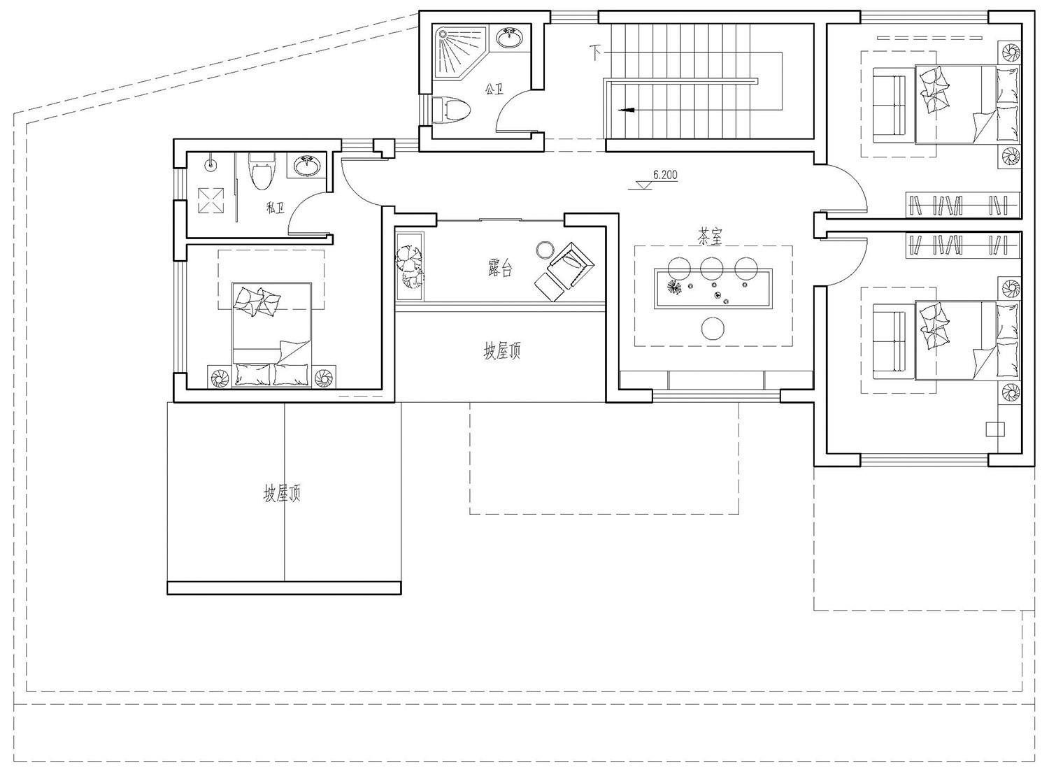
主体设计:

客厅、餐厅、厨房、卧室、公卫、阳台、露台。

。

="://www.lemeizhai.com/index.asp" target="_self" style="font-family: 楷体, 楷体_GB2312, SimKai; font-size: 24px; text-decoration: underline;">转载请注明出自轩鼎别墅设计:://www.lemeizhai.com/index.asp