在农村什么最有面子!那就是建一栋别墅风风光光的。今天给大家推荐一款新中式别墅设计,这是一款青砖蓝瓦白墙的三层别墅设计,特别有韵味,这样一栋别墅建在村里绝对每天风风光光

别墅层数: 三层
别墅风格: 中式
占地面积:148㎡
开 间:13.5m
进 深:11m
建筑占地:13.5m×11m
建筑面积:335㎡
主体造价:49.0~54.0万
建筑结构:框架结构



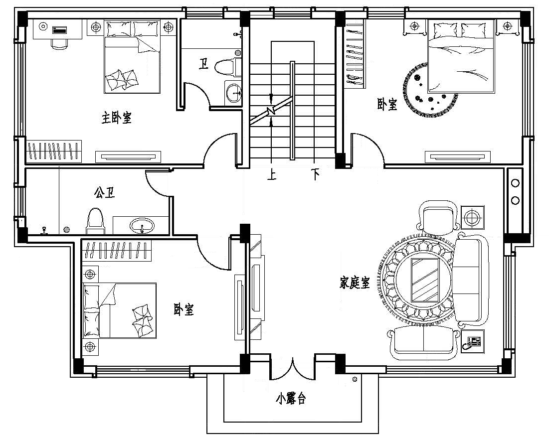
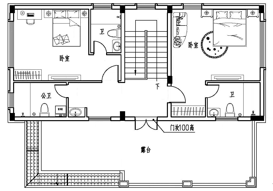
主体设计:
客厅、餐厅、厨房、卧室、公卫、阳台、露台。
。
="://www.lemeizhai.com/index.asp" target="_self">转载请注明出自轩鼎别墅设计:://www.lemeizhai.com/index.asp