天越来越暖和了,是出门放松的好时节。今天推荐的是山东胡总私人订制的="://www.lemeizhai.com/Picture.asp?PicClassID=91" target="_self" style="font-size: 24px; text-decoration: underline;">三层别墅设计,这是一款古堡类型的别墅设计方案,经济实惠主体造价:30.8~35.8万左右,整体大气美观,是一栋好房子,喜欢的可以收藏哦

别墅层数: 三层
别墅风格: 欧式
占地面积:154㎡
开 间:11.5m
进 深:13.4m
建筑占地:11.5m×13.4m
建筑面积:224㎡
主体造价:30.8~35.8万
建筑结构:砖混结构


主体设计:

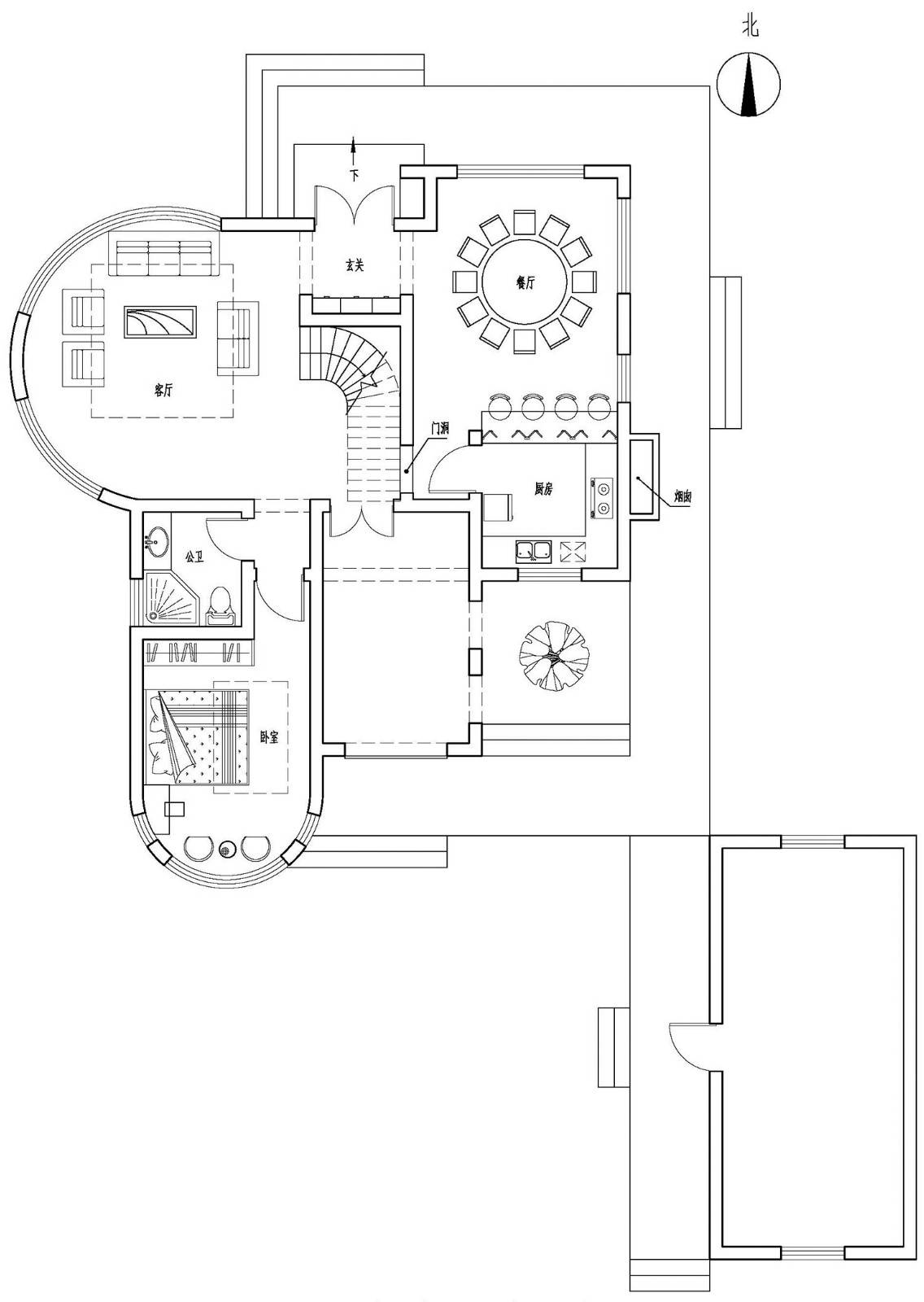
客厅、餐厅、厨房、卧室、公卫、阳台、露台。

。

="://www.lemeizhai.com/index.asp" target="_self" style="font-family: 楷体, 楷体_GB2312, SimKai; font-size: 24px; text-decoration: underline;">转载请注明出自轩鼎别墅设计:://www.lemeizhai.com/index.asp