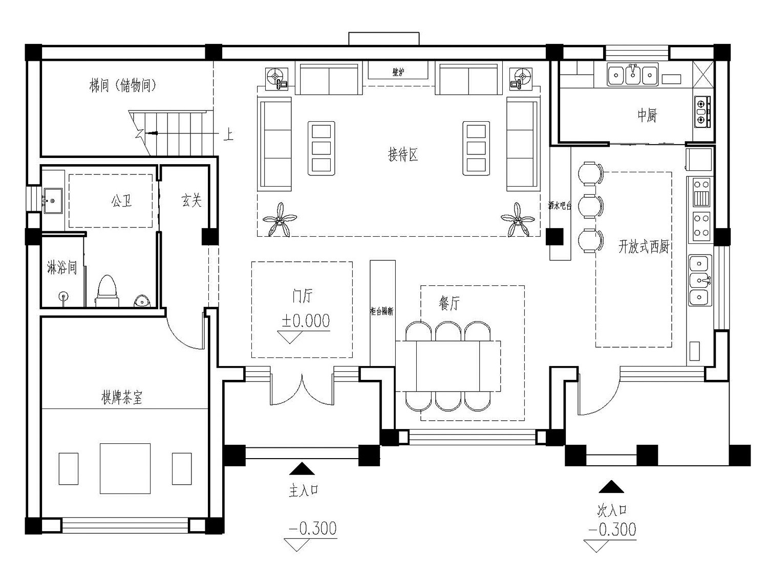
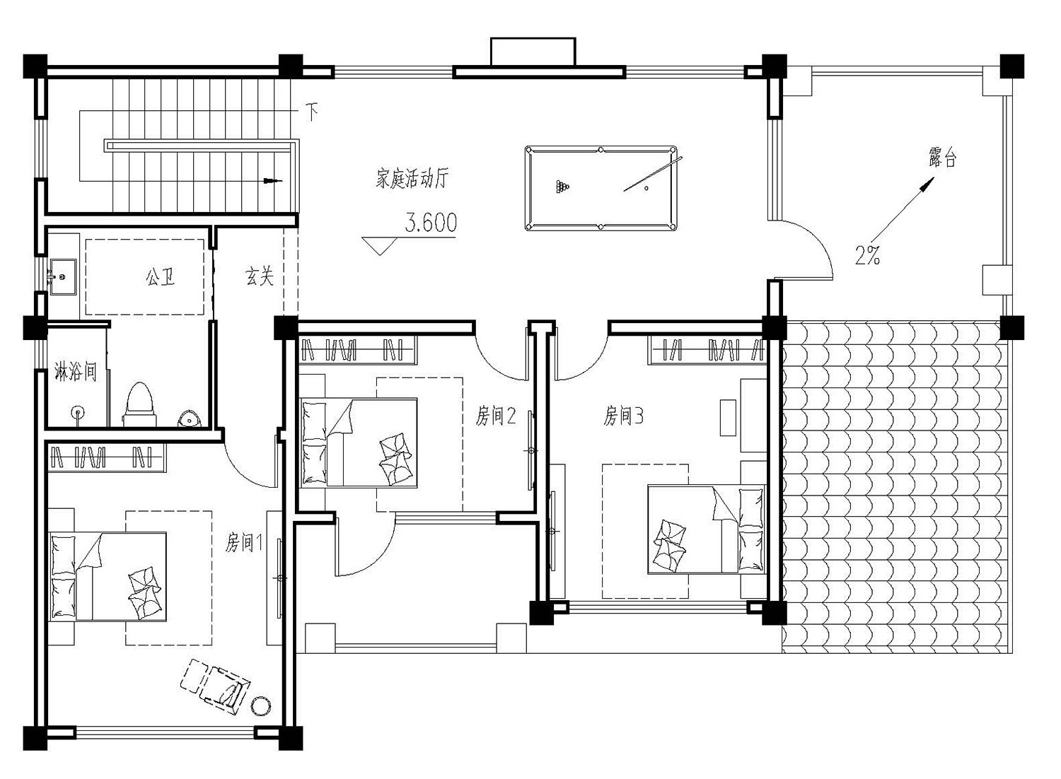
现代自建房属性好,安全牢靠,盖新房就应该找专业团队。今天给大家介绍山东金先生的="://www.lemeizhai.com/Picture.asp?PicClassID=88" target="_self" style="font-size: 24px; text-decoration: underline;">二层别墅案例,如下图所示别墅是美式风格,就像小木屋一样。别墅是框架结构安全牢靠,抗震系数高,大屋檐设计排水方便,别墅外形不显压抑。


别墅层数: 二层
别墅风格: 美式
占地面积:193㎡
开 间:16.7m
进 深:11.6m
建筑占地:16.7m×11.6m
建筑面积:293㎡
主体造价:40.0~45.0万
建筑结构:框架结构


主体设计:

客厅、餐厅、厨房、卧室、公卫、阳台、露台。

。
="://www.lemeizhai.com/index.asp" target="_self">转载请注明出自轩鼎别墅设计:://www.lemeizhai.com/index.asp