开间9.8米的欧式="://www.lemeizhai.com/Picture.asp?PicClassID=91" target="_self" style="font-size: 24px; text-decoration: underline;">别墅设计,这两种款式你喜欢哪个,这第一款39万到35万,二款40万到44万。这两款别墅都差不多,就造价不同,喜欢的可以收藏。
别墅一

别墅二

墅层数: 三层
别墅风格: 欧式
占地面积:94㎡
开 间:9.8m
进 深:9.6m
建筑占地:9.8m×9.6m
建筑面积:273㎡
主体造价:39.0~44.0万
建筑结构:砖混结构

主体设计:

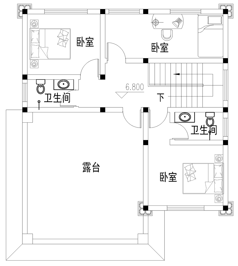
客厅、餐厅、厨房、卧室、公卫、阳台、露台。

。

="://www.lemeizhai.com/index.asp" target="_self">转载请注明出自轩鼎别墅设计:://www.lemeizhai.com/index.asp