二层别墅要建大气漂亮的,今天轩鼎给大家推荐的这款欧式别墅设计就是如此。好的别墅不需要复杂的装修,简单的线条就能变得高端,从="://www.lemeizhai.com/Picture.asp?PicClassID=88" target="_self" style="font-size: 24px; text-decoration: underline;">二层别墅设计图的正面看方方正正。别墅内部空间大,有书房娱乐室,喜欢的可以收藏啊

别墅层数: 二层
别墅风格: 新中式
占地面积:171㎡
开 间:14.3m
进 深:12m
建筑占地:14.3m×12m
建筑面积:271㎡
主体造价:38.3~43.3万
建筑结构:砖混结构

主体设计:

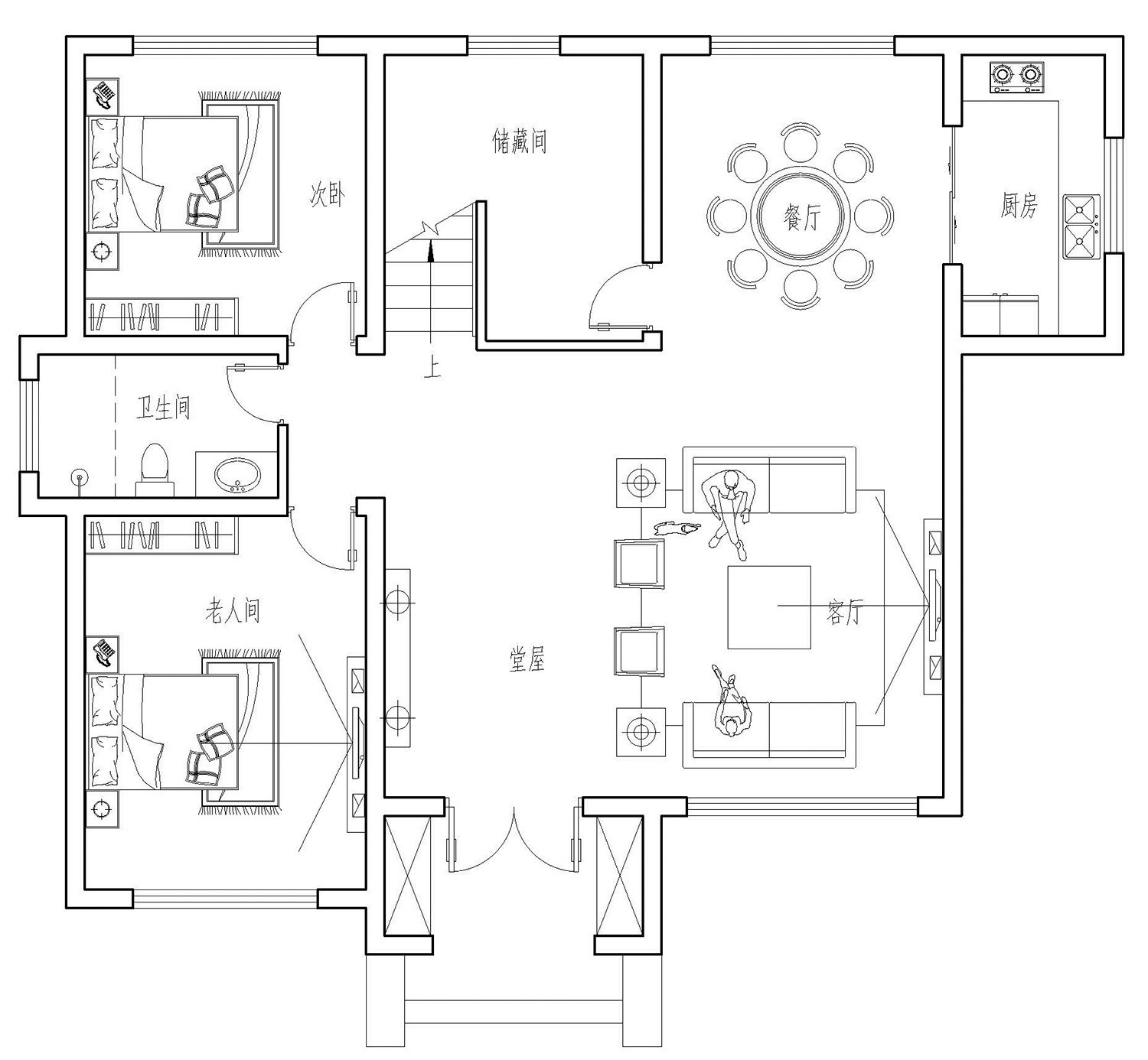
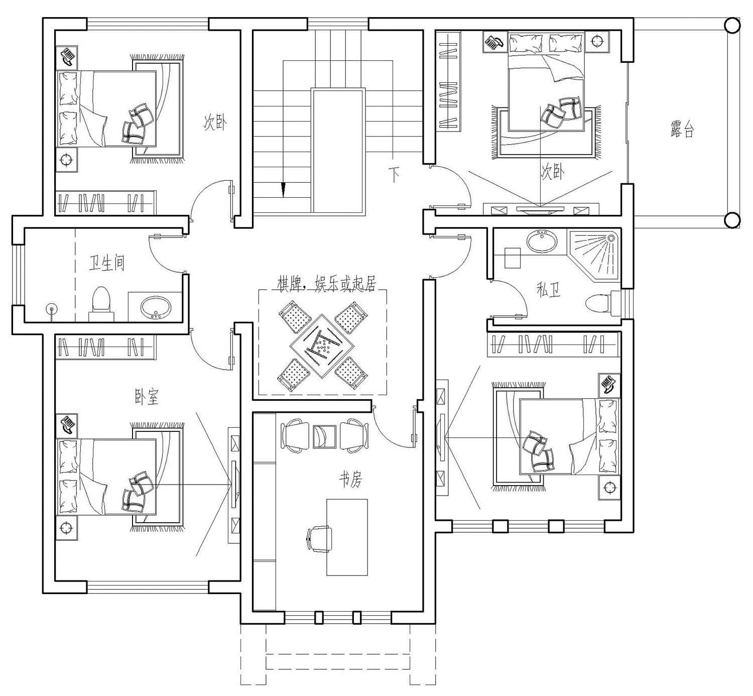
客厅、餐厅、厨房、卧室、公卫、阳台、露台。
。
="://www.lemeizhai.com/index.asp" target="_self" style="font-family: 楷体, 楷体_GB2312, SimKai; font-size: 24px; text-decoration: underline;">转载请注明出自轩鼎别墅设计:://www.lemeizhai.com/index.asp