本期介绍的别墅案例是二层新中式,这是一款开间在11.7米的别墅,多窗口设计采光良好,外贴瓷砖加黑边装修有一丝古典韵味。这款别墅内部空间大一二层都不拥挤,是一款舒适的="://www.lemeizhai.com/Picture.asp?PicClassID=88" target="_self" style="font-size: 24px; text-decoration: underline;">二层别墅设计。

别墅层数: 二层
别墅风格: 新中式
占地面积:117㎡
开 间:11.7m
进 深:10m
建筑占地:11.7m×10m
建筑面积:197㎡
主体造价:30.6~35.6万
建筑结构:砖混结构



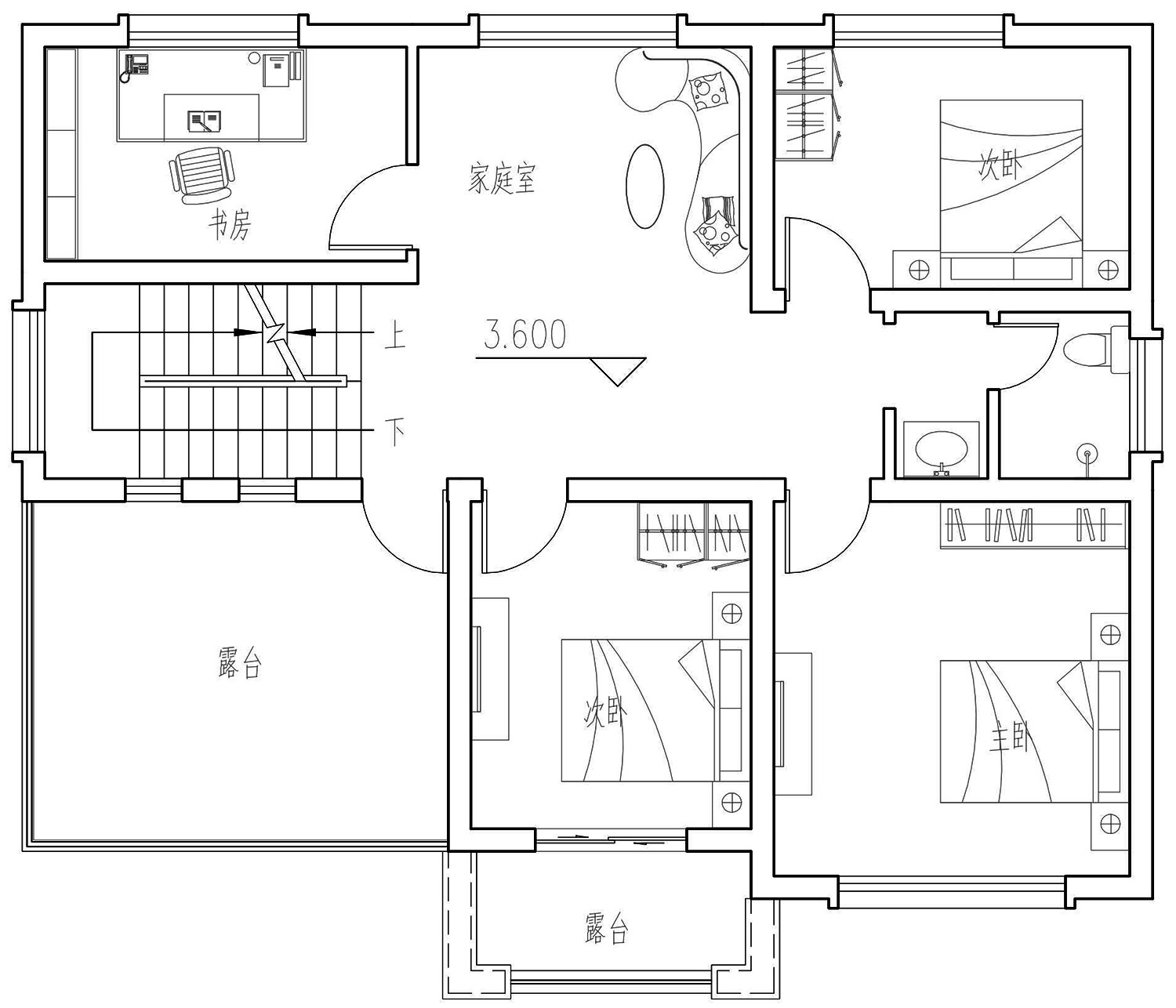
主体设计:

客厅、餐厅、厨房、卧室、公卫、阳台、露台。

。
="://www.lemeizhai.com/index.asp" target="_self" style="font-family: 楷体, 楷体_GB2312, SimKai; font-size: 24px; text-decoration: underline;">转载请注明出自轩鼎别墅设计:://www.lemeizhai.com/index.asp