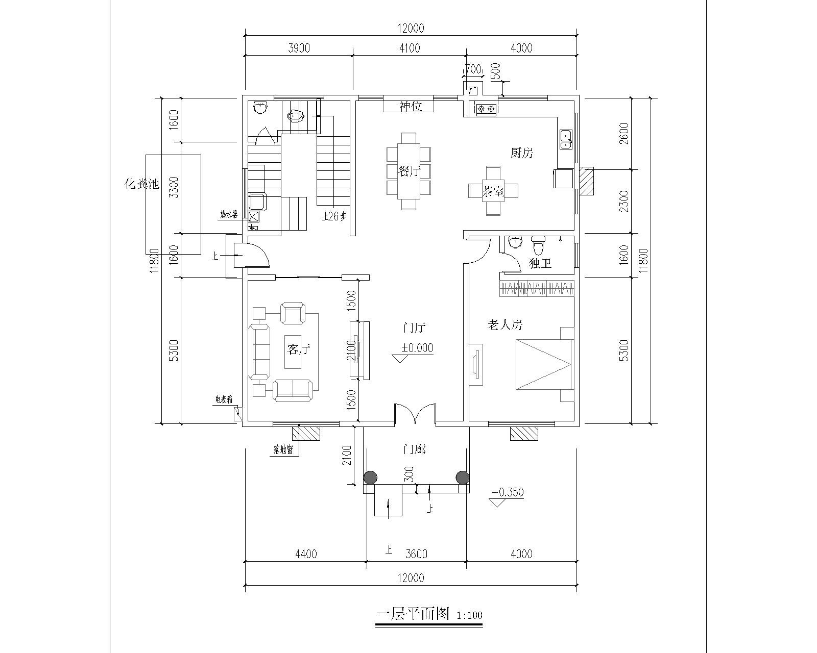
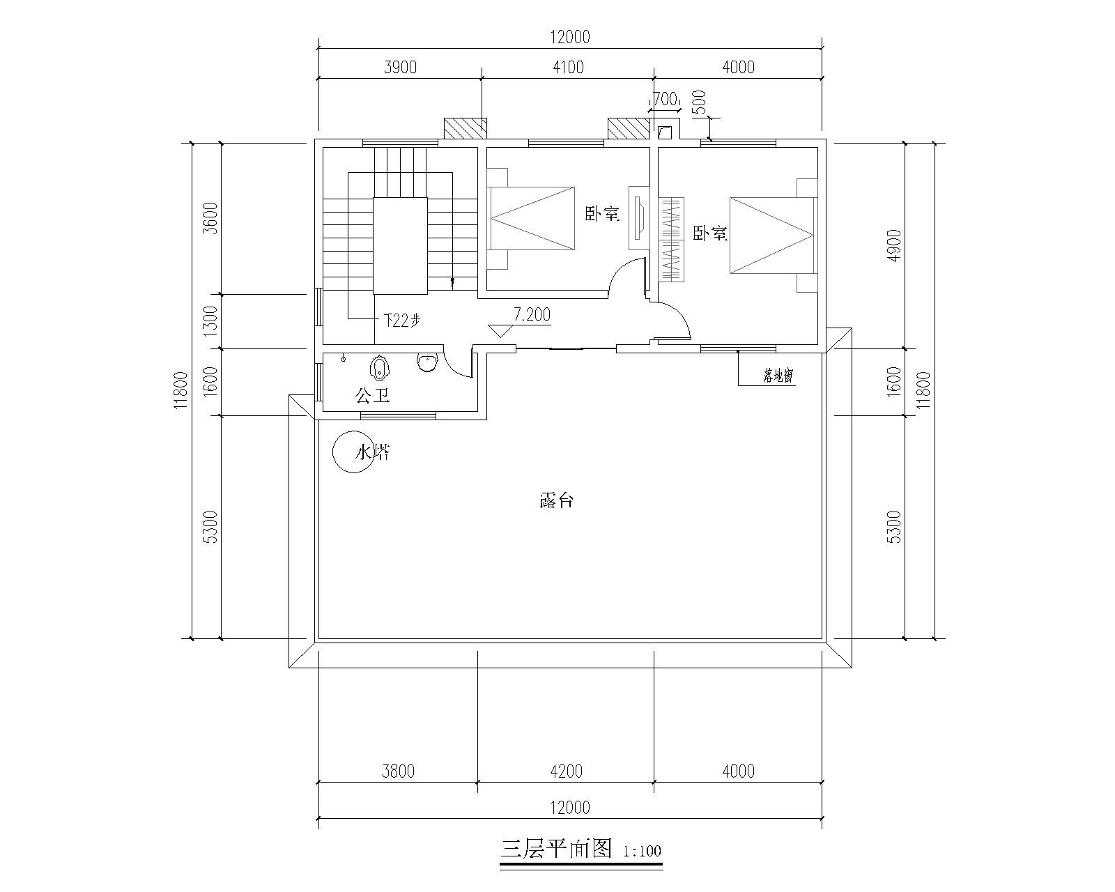
建别墅也得量力而行有钱就建。今天小编推荐一款价格实惠的="://www.lemeizhai.com/Picture.asp?PicClassID=91" target="_self" style="font-size: 24px; text-decoration: underline;">三层别墅设计,这款别墅是我公司经典案例预估价40万左右,是吴总私人订制的款式。这款别墅是多露台+落地窗的形式,外立面装修采用文化石和真石漆还有罗马柱。喜欢的就收藏吧

别墅层数: 三层
别墅风格: 欧式
占地面积:155㎡
建筑占地:12m×11.8m
建筑面积:361.27㎡
预估造价:42.8万

主体设计:

客厅、餐厅、厨房、卧室、公卫、阳台、露台。

。

转载请注明出自轩鼎别墅设计:://www.lemeizhai.com/index.asp