家住临沂的孙总希望建一栋有大庭院的新中式别墅,今天这款有庭院的新中式别墅设计推荐给大家,经典的配色设计绝对是你的菜。点击="://www.lemeizhai.com/index.asp" target="_self">设计别墅图纸进官网查看

别墅层数: 二层
别墅风格: 中式
占地面积:175㎡
开 间:15.3m
进 深:11.5m
建筑占地:15.3m×11.5m
建筑面积:318㎡
主体造价:45.8~50.8万
建筑结构:砖混结构


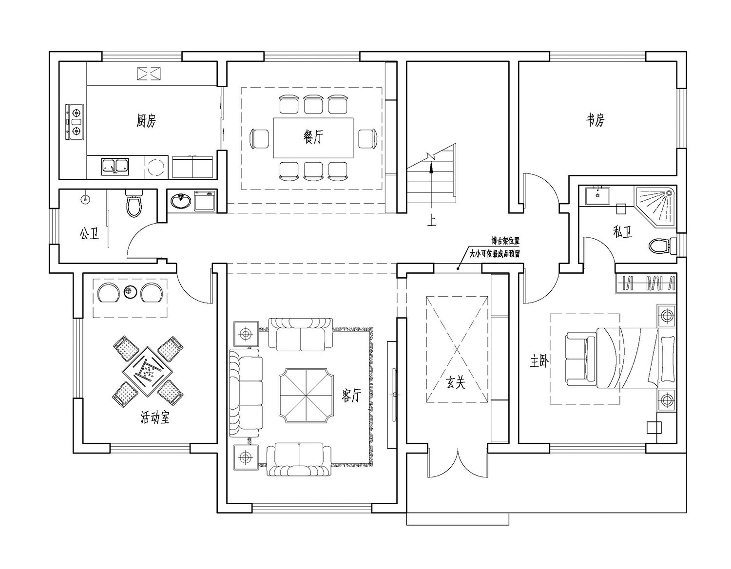
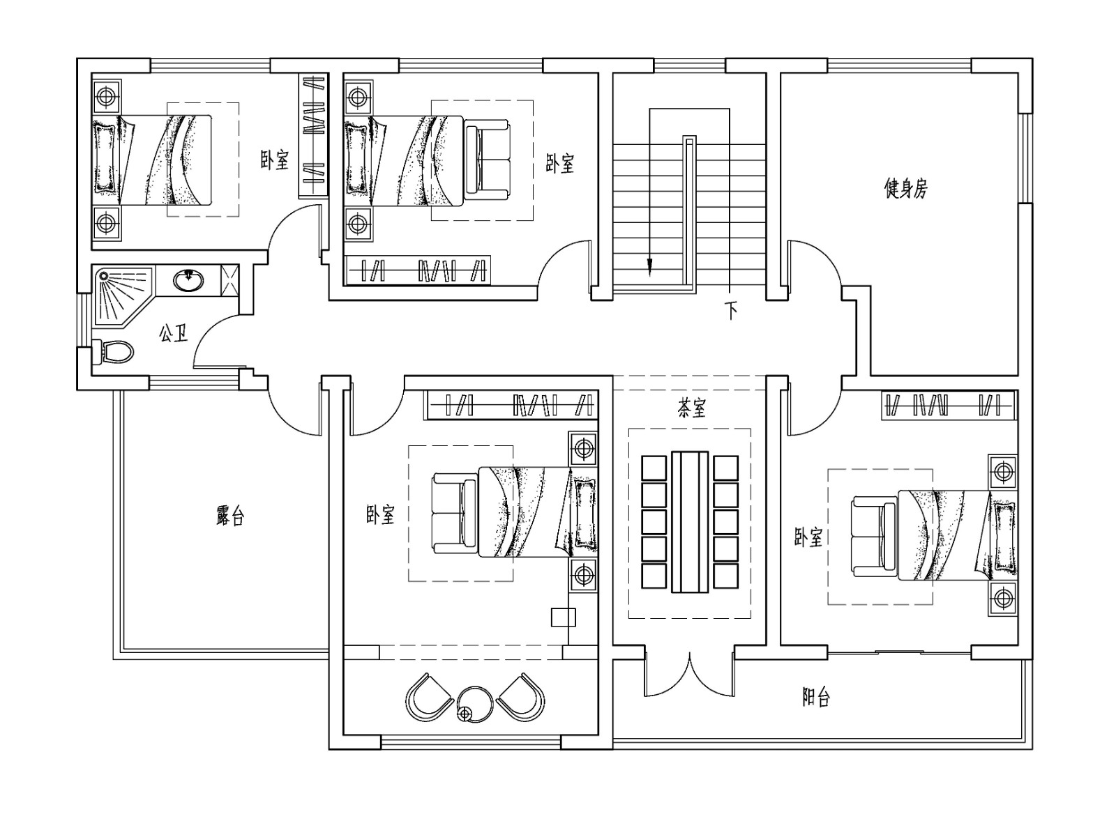
主体设计:

客厅、餐厅、厨房、卧室、公卫、阳台、露台。

。
转载请注明出自轩鼎别墅设计:://www.lemeizhai.com/index.asp