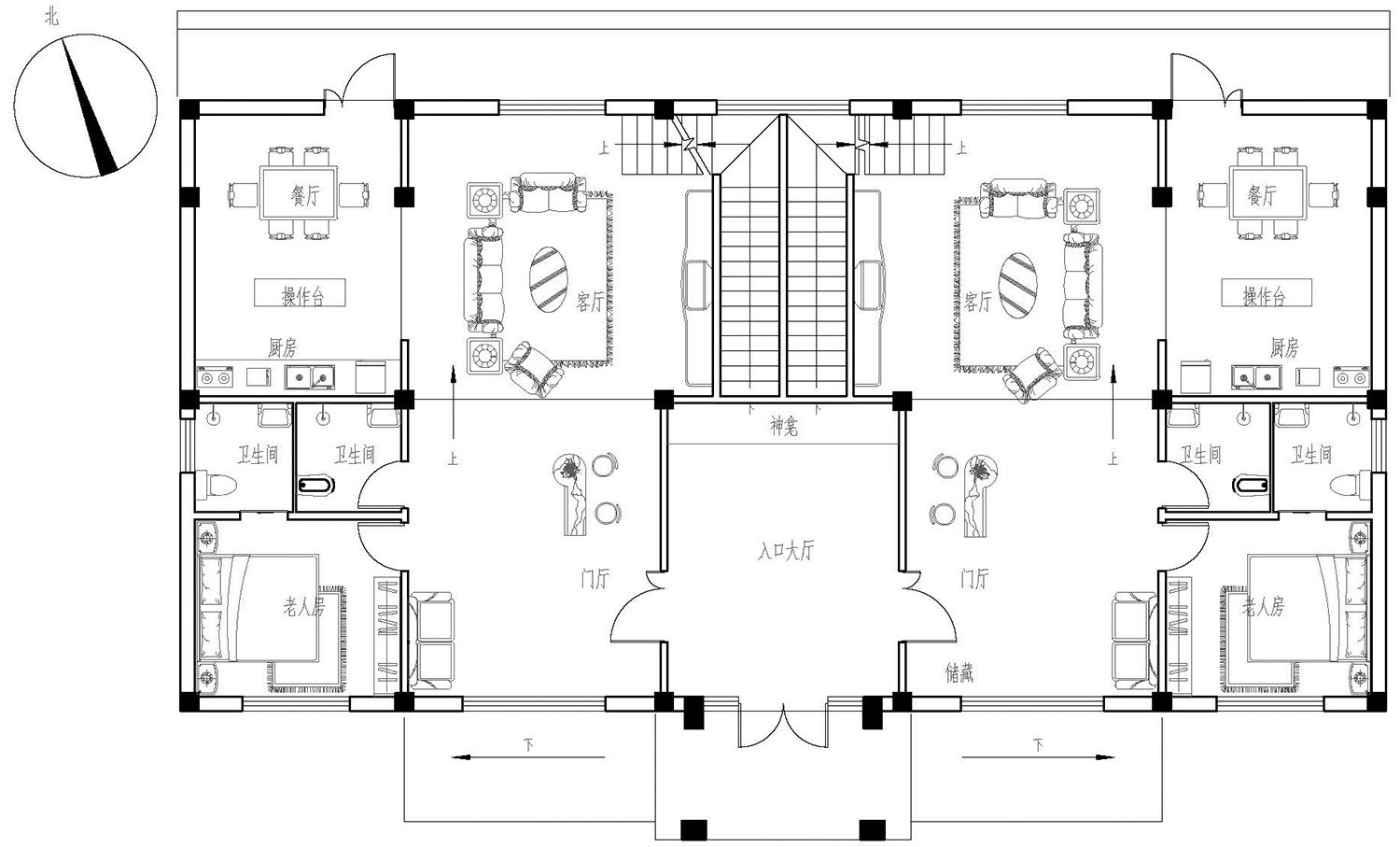
今天小编推荐一款田园风格的欧式别。这款="://www.lemeizhai.com/Picture.asp?PicClassID=88" target="_self" style="font-size: 24px; text-decoration: underline;">二层别墅设计是双拼的,是华总私人订制的款式,华总是个孝子希望陪在父母身边,找我们定制了一款田园别墅,这款别墅公用一个大门各方面也没的说了。

别墅层数: 二层
别墅风格: 欧式
占地面积:200㎡
开 间:20m
进 深:10m
建筑占地:20m×10m
建筑面积:386㎡
主体造价:56.7~61.7万
建筑结构:框架结构

主体设计:

客厅、餐厅、厨房、卧室、公卫、阳台、露台。

。
转载请注明出自轩鼎别墅设计:://www.lemeizhai.com/index.asp