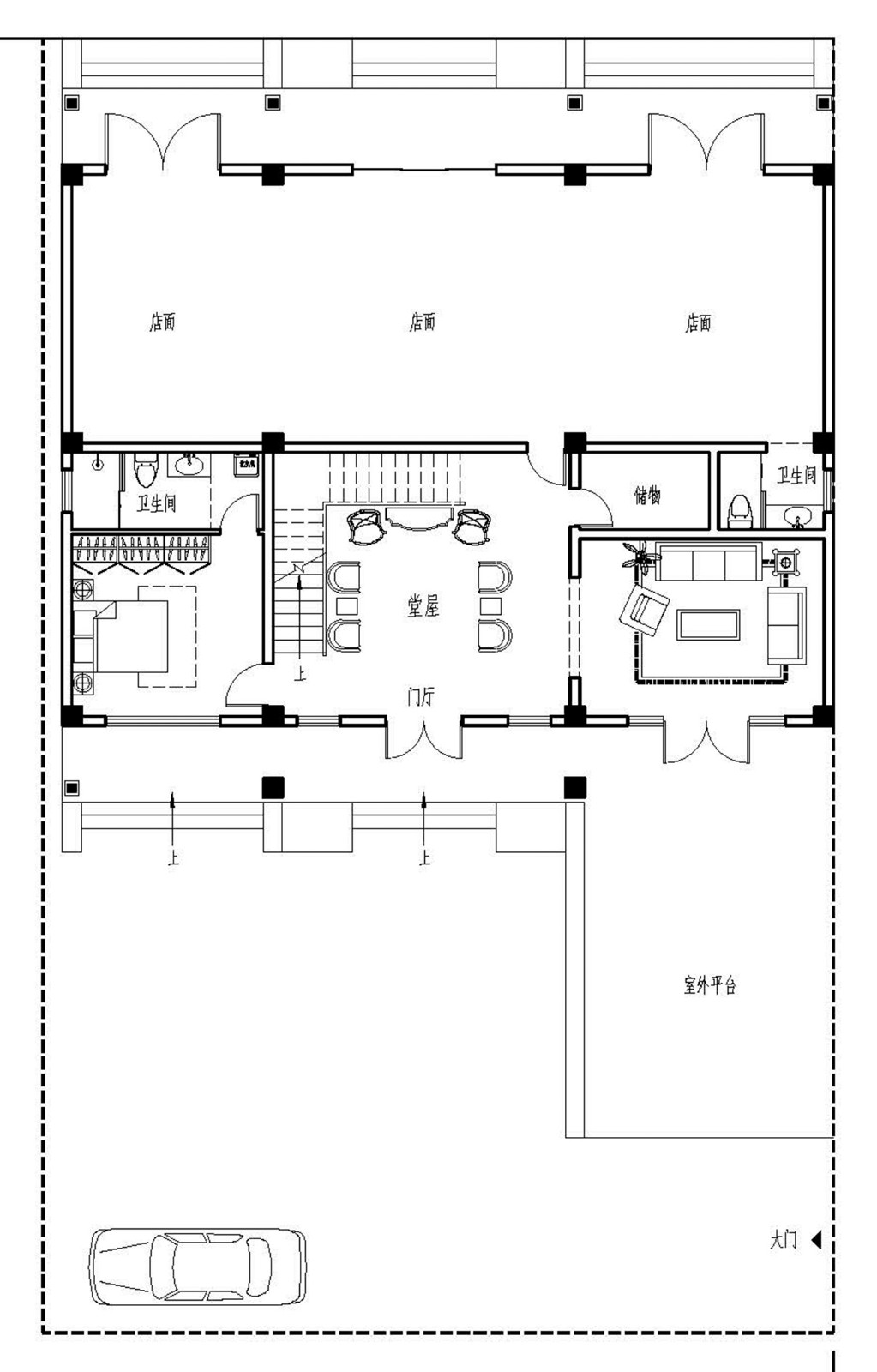
今天给大家推出的是商住两用款欧式="://www.lemeizhai.com/Picture.asp?PicClassID=88" target="_self" style="font-size: 24px; text-decoration: underline;">二层别墅设计图,门面好顾客就多!!这款别墅设计有庭院,商用面积不错,但居住区较少厨房在二层,如果觉得小可以缩小庭院增大居住区,总之这是一款商用意义十足二层欧式别墅。

别墅层数: 二层
别墅风格: 欧式
占地面积:188㎡
开 间:16.1m
进 深:11.7m
建筑占地:16.1m×11.7m
建筑面积:346㎡
主体造价:50.3~55.3万
建筑结构:框架结构

主体设计:

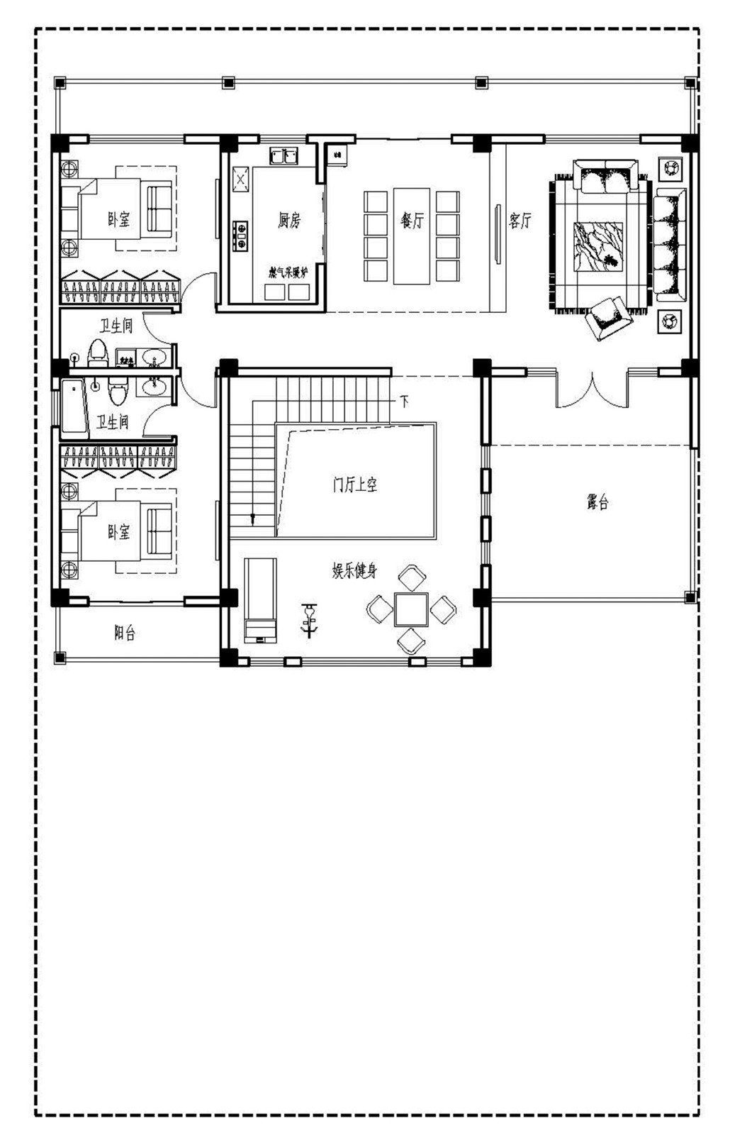
客厅、餐厅、厨房、卧室、公卫、阳台、露台。

。
转载请注明出自轩鼎别墅设计:://www.lemeizhai.com/index.asp