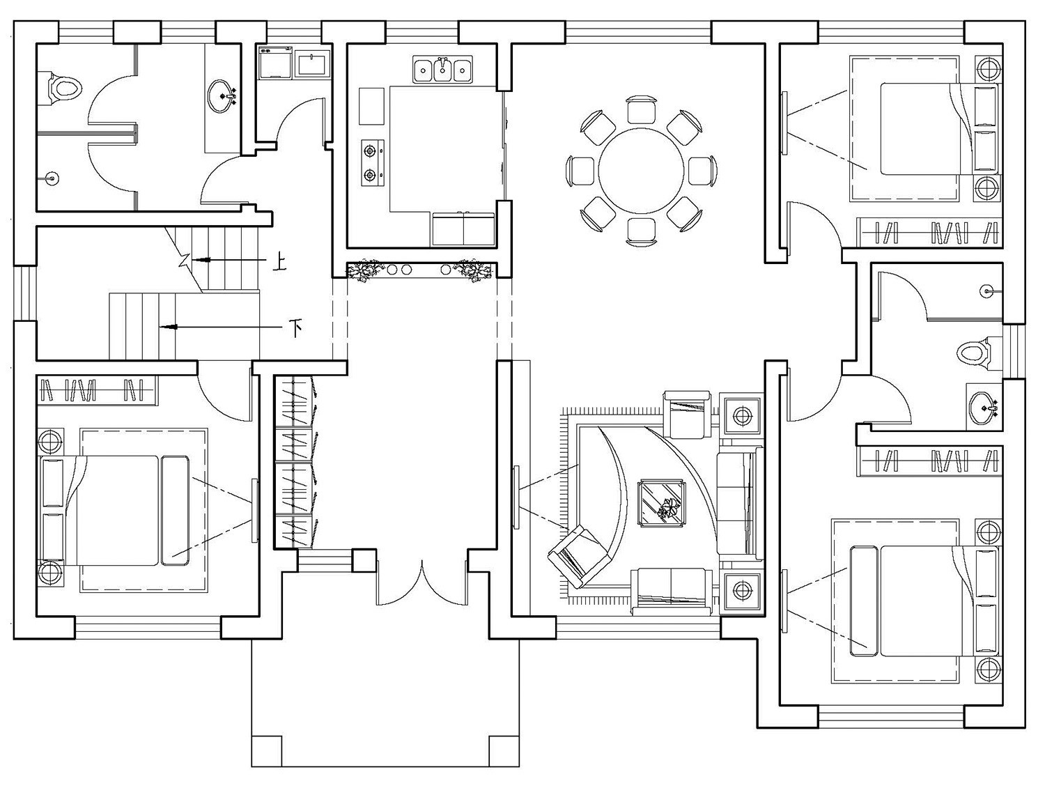
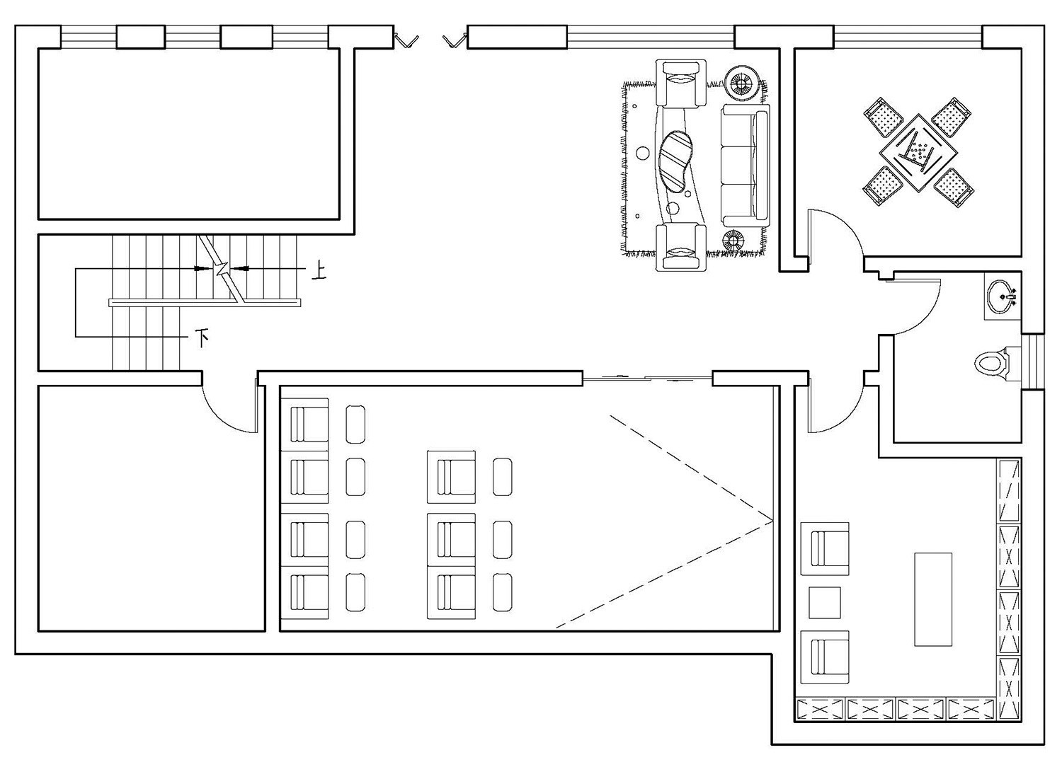
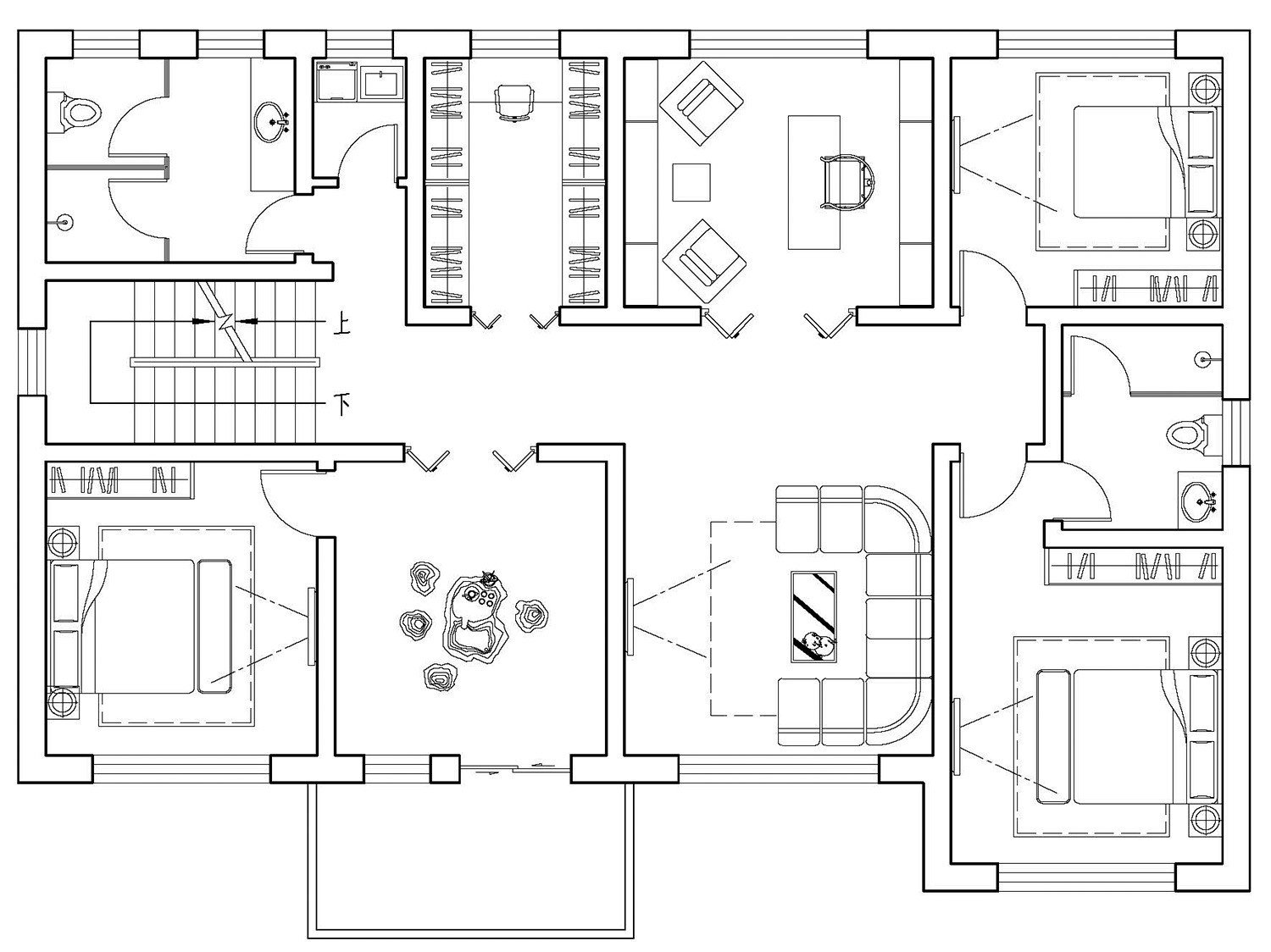
好房子使人心情愉悦,好房子是地位与身法的象征,一栋好房子是很有必要的,是不可或缺。今天给大家推荐一款="://www.lemeizhai.com/Picture.asp?PicClassID=91" target="_self" style="font-size: 24px; text-decoration: underline;">四层别墅设计,这款别墅是典型的欧式田园风别墅,真石漆搭配文化石让别墅更有韵味。

别墅层数:四层
别墅风格: 欧式
占地面积:192㎡
开 间:16.6m
进 深:11.6m
建筑占地:16.6m×11.6m
建筑面积:638㎡
主体造价:91.0~96.0万
建筑结构:砖混结构


主体设计:

客厅、餐厅、厨房、卧室、公卫、阳台、露台。



。
转载请注明出自轩鼎别墅设计:://www.lemeizhai.com/index.asp