家住南方的刘先生非常喜欢现代风格的房子,找到我们轩鼎,设计师设计了一款有特点二层现代的="://www.lemeizhai.com/Picture.asp?PicClassID=88" target="_self" style="text-decoration: underline; font-family: 楷体, 楷体_GB2312, SimKai; font-size: 24px;">别墅设计,非常漂亮采光良好洁白的配色十分吸引人!有庭院。

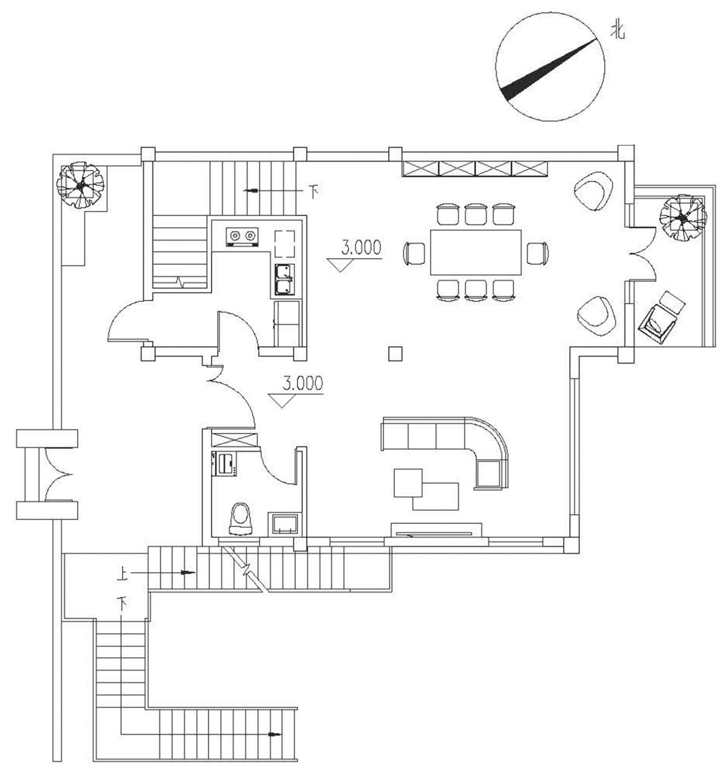
别墅层数: 二层
别墅风格: 现代
占地面积:96㎡
开 间:10.8m
进 深:8.9m
建筑占地:10.8m×8.9m
建筑面积:188㎡
主体造价:25.0~30.0万
建筑结构:框架结构


主体设计:

客厅、餐厅、厨房、卧室、公卫、阳台、露台。

。
转载请注明出自轩鼎别墅设计:://www.lemeizhai.com/index.asp