千好万好没有自己的家好,自己的家乡永远是最美的,在老家建一栋好房子一定特别风光,给祖上长脸。今天给大家推荐的是山东吴总私人订制的现代别墅设计,这款别墅清新时尚特别具有现代感,有现代感的现代别墅才是最好的1!喜欢别墅设计的请点击="://www.lemeizhai.com/Picture.asp?PicClassID=91" target="_self" style="font-size: 24px; text-decoration: underline;">别墅三层图片大全

别墅层数: 三层
别墅风格: 现代
占地面积:110㎡
开 间:11m
进 深:10m
建筑占地:11m×10m
建筑面积:360㎡
主体造价:49.0~54.0万
建筑结构:砖混结构


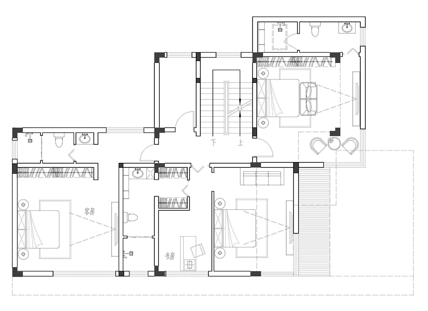
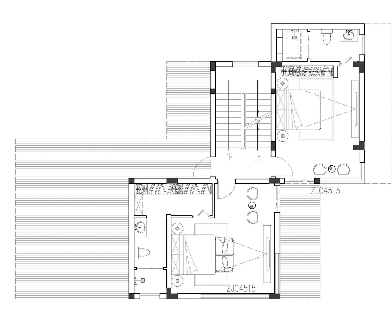
主体设计:

客厅、餐厅、厨房、卧室、公卫、阳台、露台。


。
转载请注明出自轩鼎别墅设计:://www.lemeizhai.com/index.asp