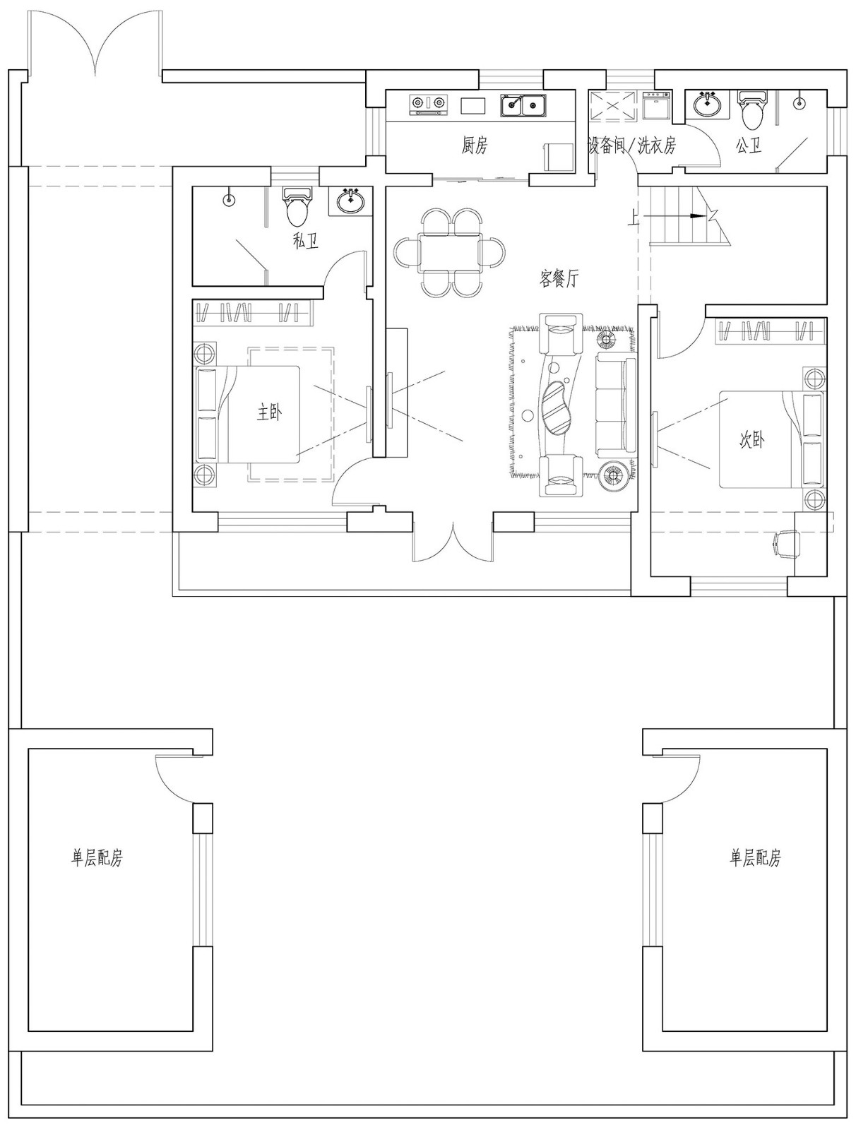
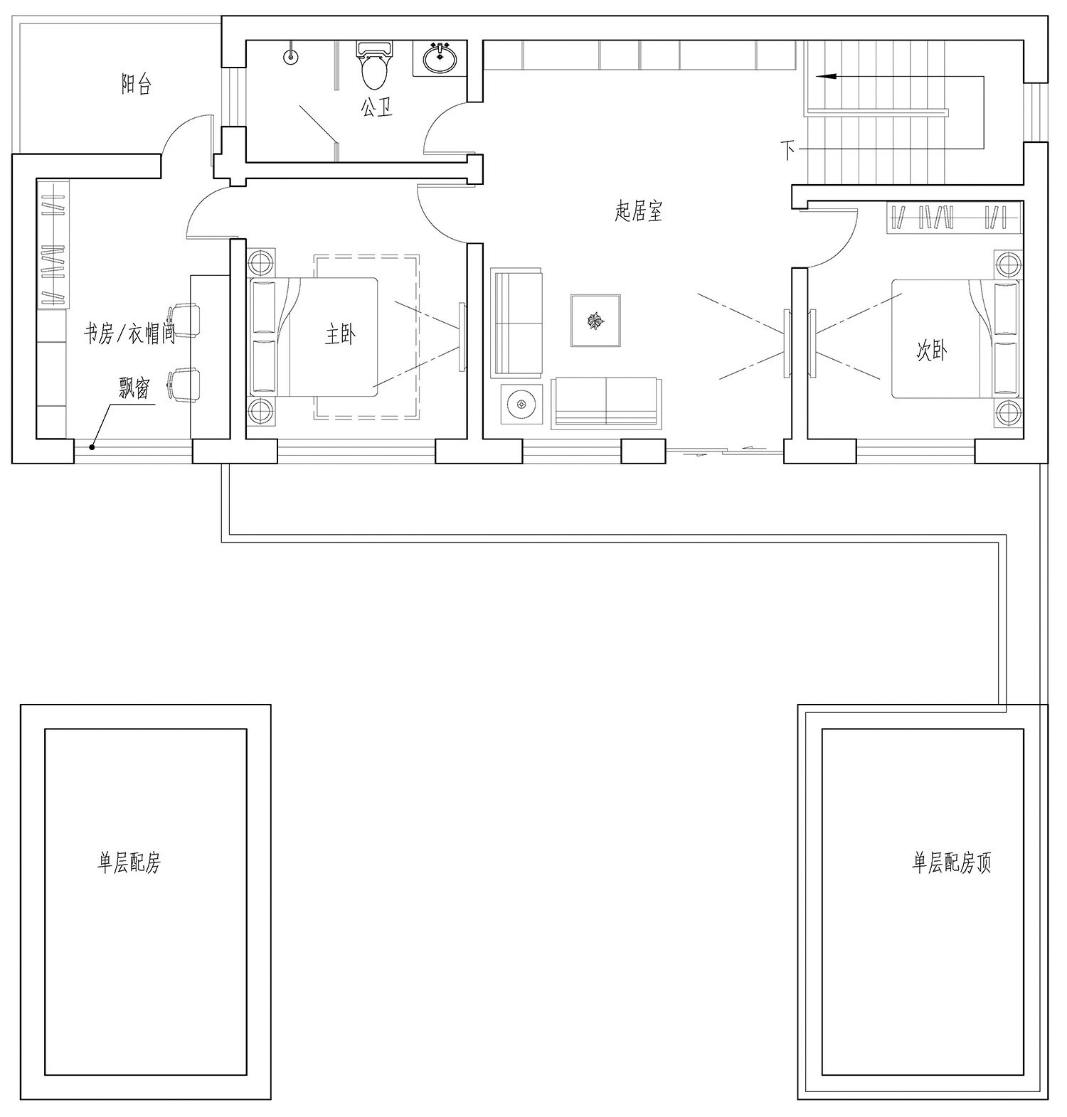
现在通过自己工作赚钱来买房子的人难啊,还要父母的扶持,所以要在老家自建房屋,建小别墅呢好的设计图是不可或缺。今天推荐的这款现代="://www.lemeizhai.com/Picture.asp?PicClassID=88" target="_self" style="font-size: 24px; text-decoration: underline;">二层别墅设计图很好,不愁没房子住,还能陪父母呢。这是多好的一件事啊。

别墅层数: 二层
别墅风格: 现代
占地面积:153㎡
开 间:15.7m
进 深:9.8m
建筑占地:15.7m×9.8m
建筑面积:215㎡
主体造价:27.0~32.0万
建筑结构:砖混结


主体设计:

客厅、餐厅、厨房、卧室、公卫、阳台、露台。

。
转载请注明出自轩鼎别墅设计:://www.lemeizhai.com/index.asp