以前看见邻居家的二层房子很羡慕,现在看见那样普通的二层自建房没有那么羡慕了,那是因为有钱人多了,农村建好房子的就多了,我家就建了一栋不错的="://www.lemeizhai.com/Picture.asp?PicClassID=88" target="_self">二层别墅设计,我家是开小超市的,这款我弟结婚用的婚房推荐给大家。现代风格年轻人喜欢,而且造价低廉最高不超过30万

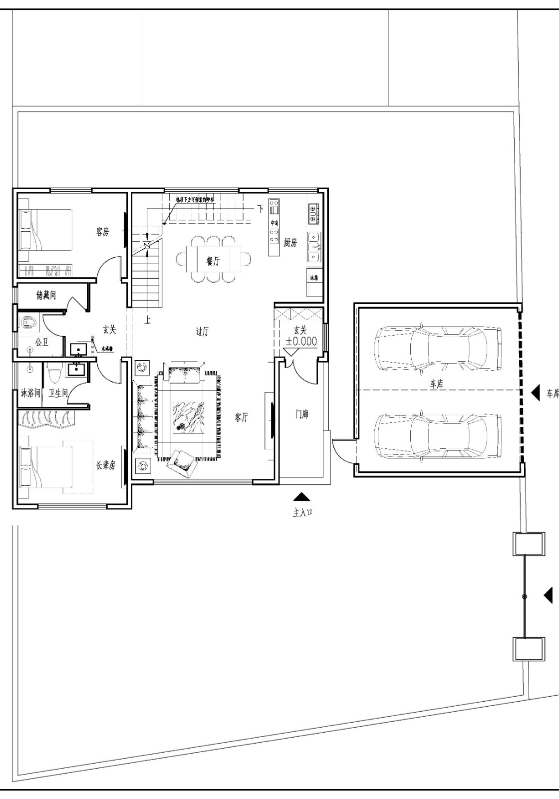
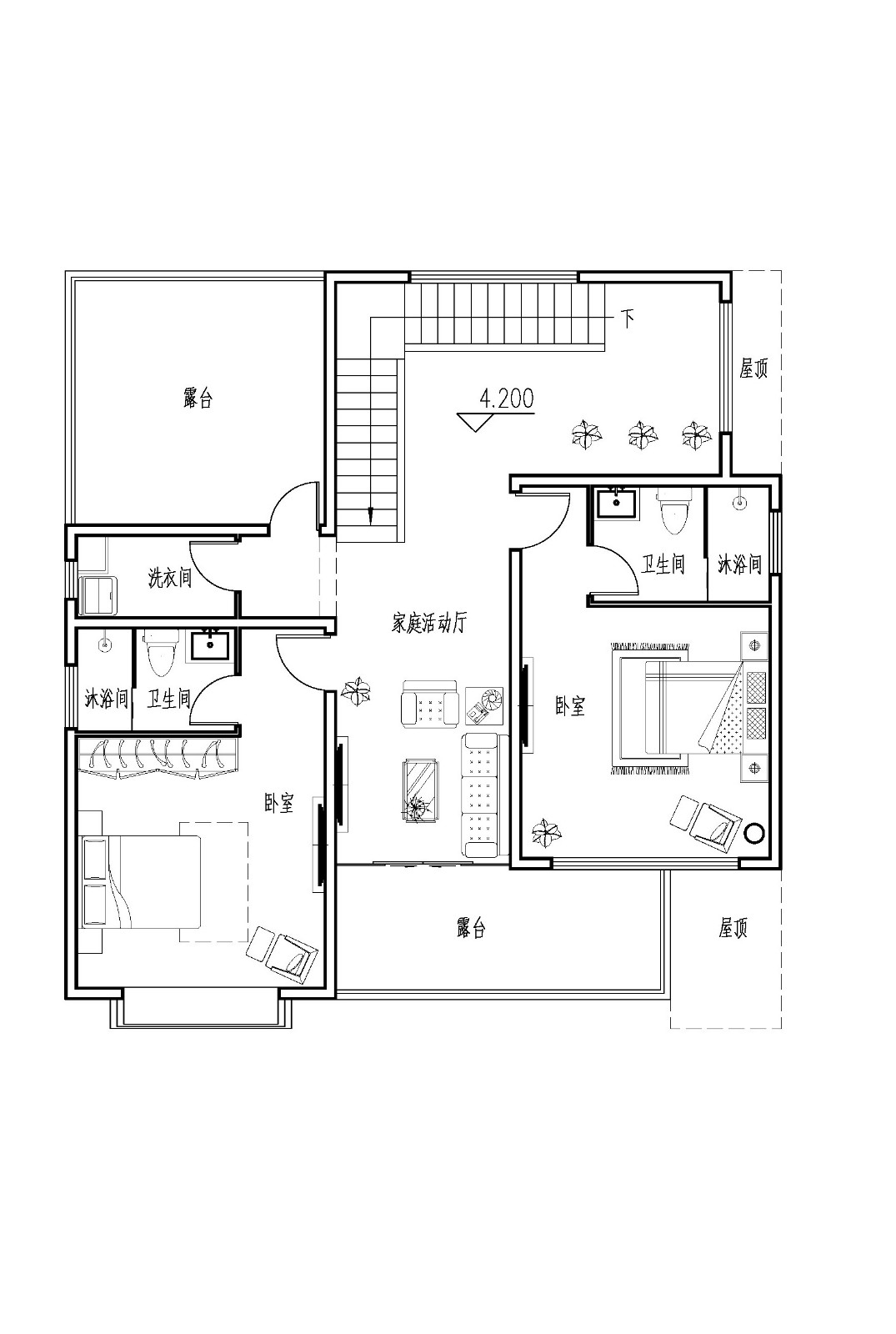
别墅层数: 二层
别墅风格: 现代
占地面积:138㎡
开 间:11.7m
进 深:11.8m
建筑占地:11.7m×11.8m
建筑面积:200㎡
主体造价:24.0~29.0万
建筑结构:砖混结构


主体设计:

客厅、餐厅、厨房、卧室、公卫、阳台、露台。

。
转载请注明出自轩鼎别墅设计:://www.lemeizhai.com/index.asp