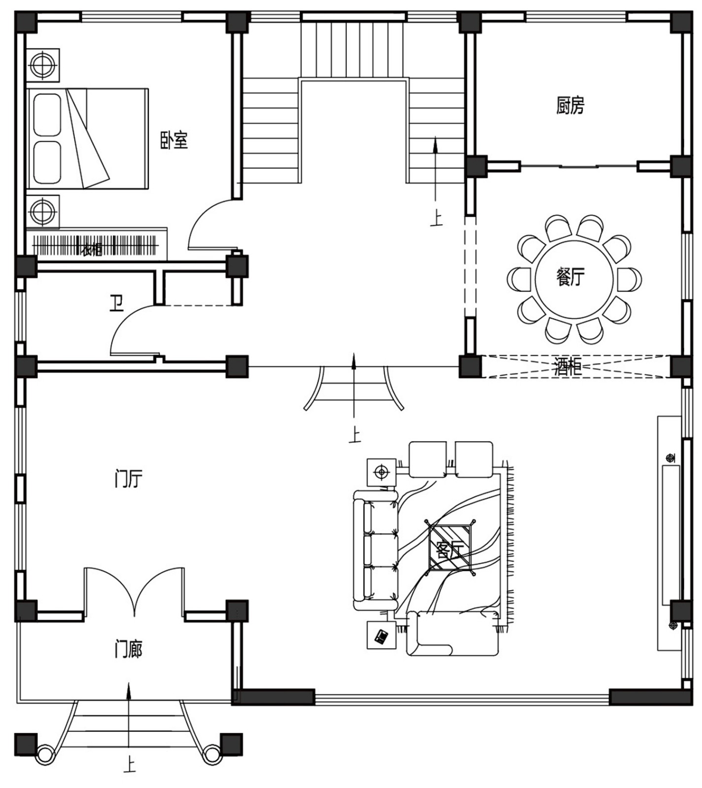
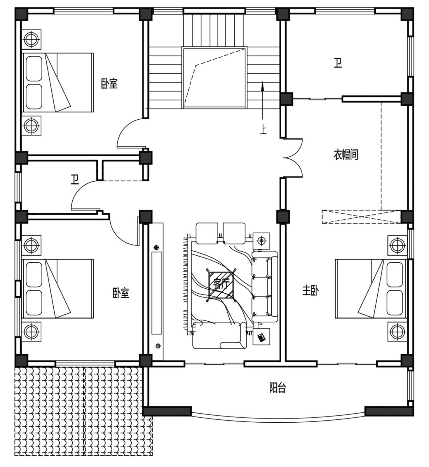
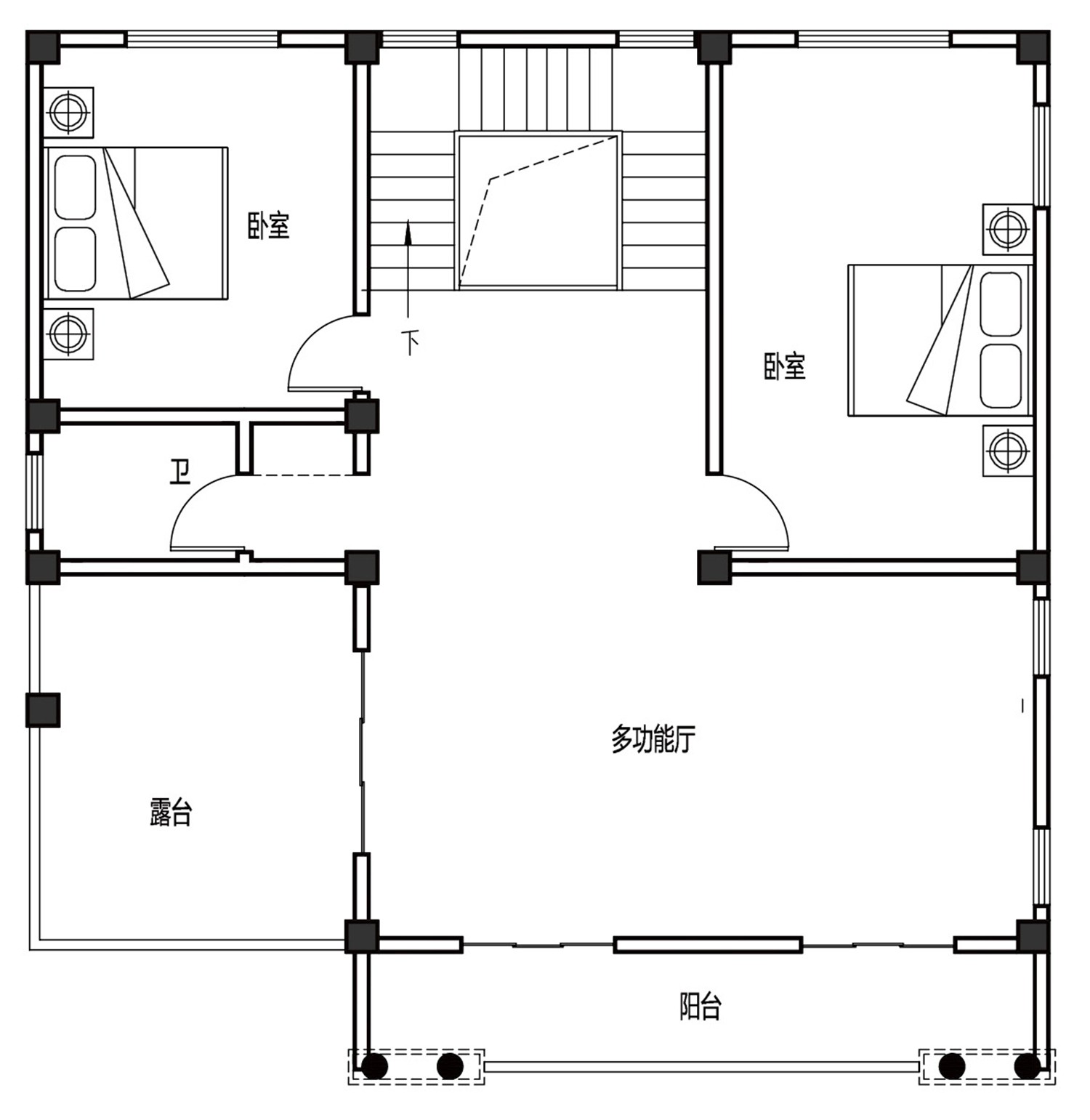
小户型用户的福音,今天推荐的是三层小户型别墅设计方案,这款别墅是非常漂亮的欧式别墅,罗马柱和洁白的围栏非常好看,这套别墅左开门,客厅朝阳有落地窗,屋里基本不黑,别墅层都多一个卧室共6个卧室且空间不局促。想要更多设计图请点击="://www.lemeizhai.com/Picture.asp?PicClassID=91" target="_self" style="font-size: 24px; text-decoration: underline;">3层别墅设计图

别墅层数: 三层
别墅风格: 欧式
占地面积:152㎡
开 间:12.2m
进 深:12.5m
建筑占地:12.2m×12.5m
建筑面积:390㎡
主体造价:57.4~62.4万
建筑结构:框架结构


主体设计:

客厅、餐厅、厨房、卧室、公卫、阳台、露台。


。
转载请注明出自轩鼎别墅设计:://www.lemeizhai.com/index.asp