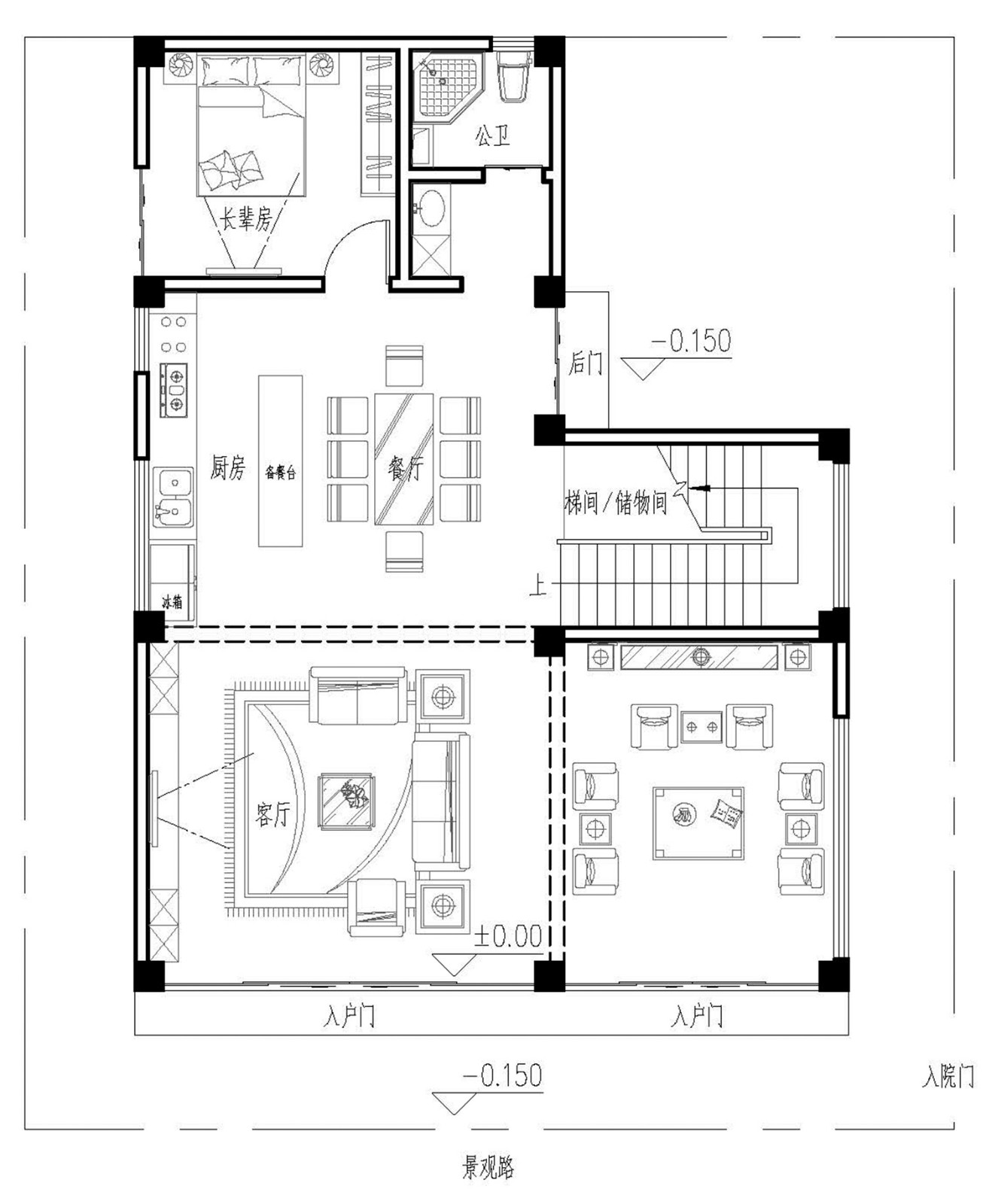
框架结构的自建房户型选择更加灵活,比砖混的结构要强,抗震性好。今天推荐的是国外用户杰克.詹姆斯定制的现代="://www.lemeizhai.com/Picture.asp?PicClassID=91" target="_self" style="font-size: 24px; text-decoration: underline;">三层别墅设计,这是一款妥妥的美式别墅,这种别墅的一切宗旨就是享受,设计有泳池而且排水系统好,屋顶独特设计有利于排水。

别墅层数: 三层
别墅风格: 现代
占地面积:128㎡
开 间:9.8m
进 深:13.1m
建筑占地:9.8m×13.1m
建筑面积:268㎡
主体造价:40.0~45.0万
建筑结构:框架结构


主体设计:

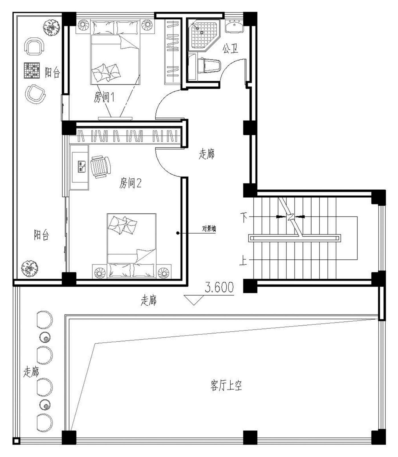
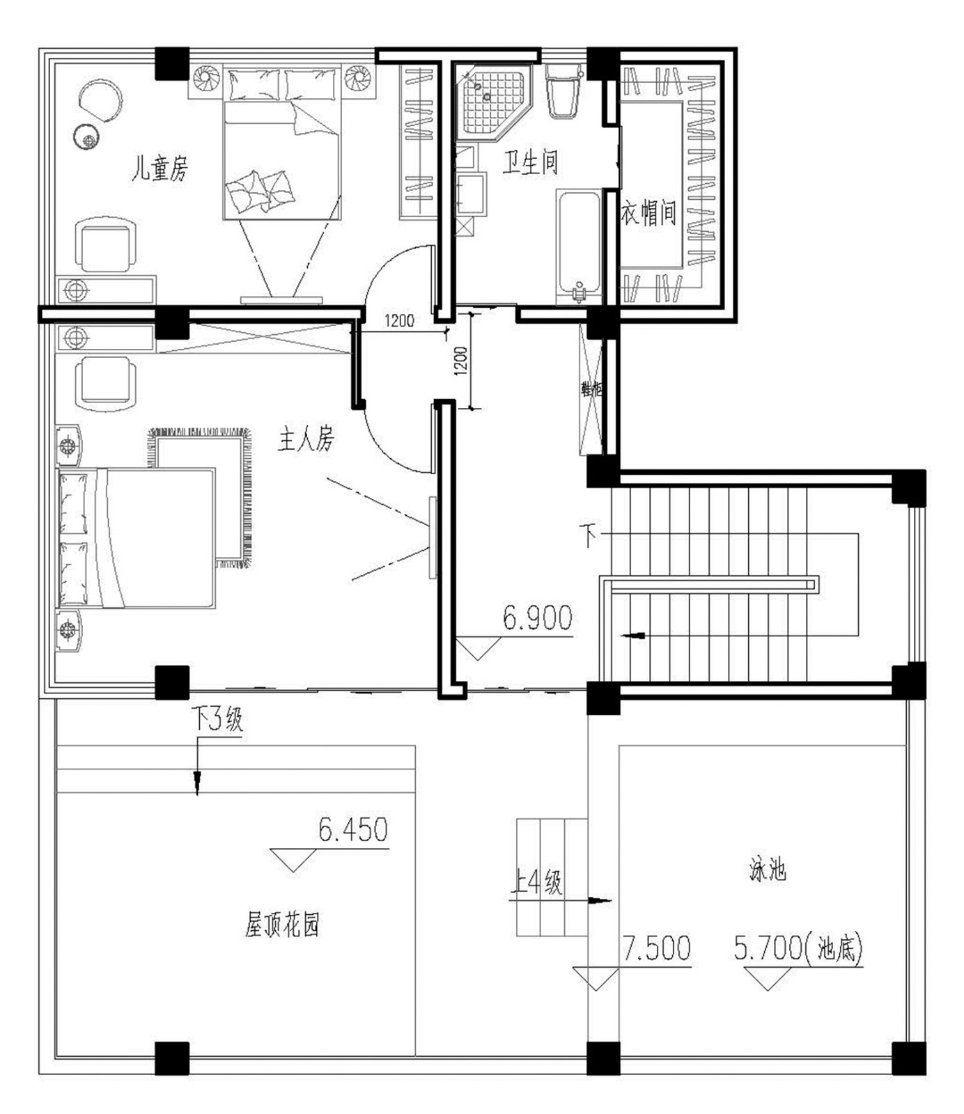
客厅、餐厅、厨房、卧室、公卫、阳台、露台。

。

转载请注明出自轩鼎别墅设计:://www.lemeizhai.com/index.asp