今天推荐的别墅浑身上下透露出两个大字“豪华”!这款别墅集所有欧式别墅之所长,没有一丝违和感,橙色的瓦片,米黄色的墙体,罗马柱与城堡一样的设计,不管从什么地方看都特别大气豪华,可以说这是="://www.lemeizhai.com/Picture.asp?PicClassID=88" target="_self" style="font-size: 24px; text-decoration: underline;">二层别墅设计中的王者之作了。

别墅层数: 二层
别墅风格: 欧式
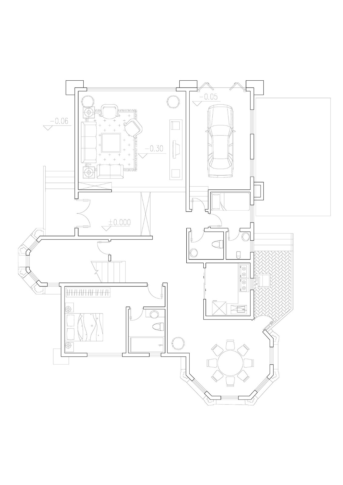
占地面积:176㎡
开 间:11m
进 深:16m
建筑占地:11m×16m
建筑面积:286㎡
主体造价:29.3~34.3万
建筑结构:砖混结构

主体设计:

客厅、餐厅、厨房、卧室、公卫、阳台、露台。

。
转载请注明出自轩鼎别墅设计:://www.lemeizhai.com/index.asp