现在的房子不仅仅是房子了,更是精神的寄托,50年以前农村人有住的地方就不错了,能回家建别墅的人,不是城里买不了房,而是留一个念想,是真正的有钱人才能干的事。今天这款二层="://www.lemeizhai.com/search.asp?SearchType=Software&imageField.x=24&imageField.y=40&SearchKey=%D6%D0%CA%BD%B1%F0%CA%FB%C9%E8%BC%C6" target="_self" style="font-size: 24px; text-decoration: underline;">中式别墅设计推荐给大家,纯纯的中式田园别墅,这款别墅设计有电梯带给你居住时的愉快体验。

别墅层数: 二层
别墅风格: 中式
占地面积:109㎡
开 间:11.9m
进 深:9.2m
建筑占地:11.9m×9.2m
建筑面积:334㎡
主体造价:45.0~50.0万
建筑结构:框架结构


主体设计:

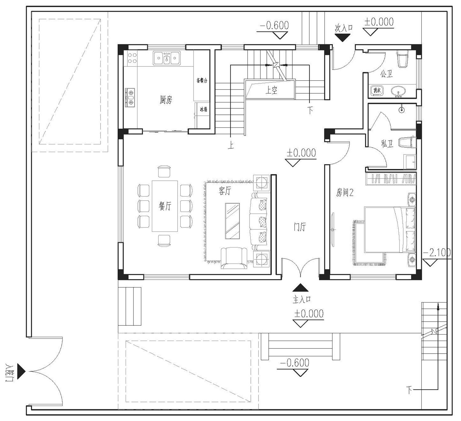
客厅、餐厅、厨房、卧室、公卫、阳台、露台。

。
转载请注明出自轩鼎别墅设计:://www.lemeizhai.com/index.asp