网上很多自建房领域的作者都说农村建别墅的很多,但事实上真正有钱建别墅的不多,能在村里建别墅的都是有钱人。今天推荐的别墅是田园欧式="://www.lemeizhai.com/Picture.asp?PicClassID=88" target="_self" style="font-size: 24px; text-decoration: underline;">二层别墅设计方案,这款别墅可是非常适合北方农村地区的,是山东孔总私人订制的,红白灰的配色非常漂亮!是一款温馨舒适的好别墅。

别墅层数: 二层
别墅风格: 欧式
占地面积:159㎡
开 间:14.5m
进 深:11m
建筑占地:14.5m×11m
建筑面积:240㎡
主体造价:35.3~40.3万
建筑结构:砖混结构


主体设计:

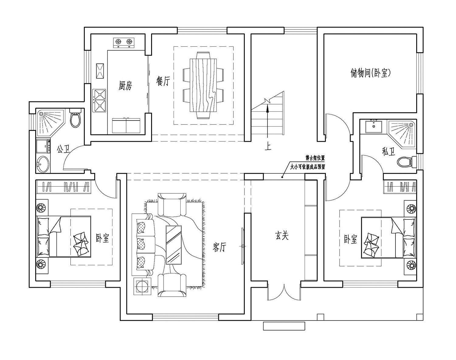
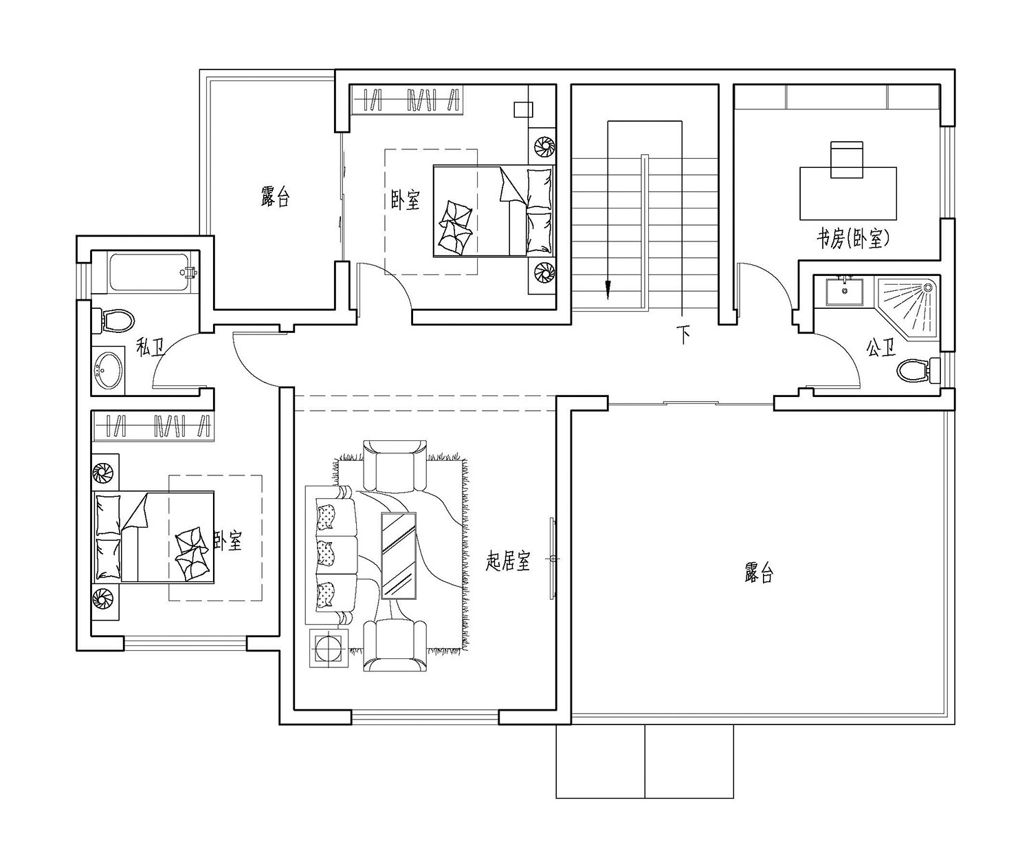
客厅、餐厅、厨房、卧室、公卫、阳台、露台。

。
转载请注明出自轩鼎别墅设计:://www.lemeizhai.com/index.asp