以前看日本电视剧就觉得他们的房子非常好,比较羡慕他们住的小别墅,现在不用羡慕了,只要有钱就能建一栋日式小别墅。今天推荐的是类日式="://www.lemeizhai.com/Picture.asp?PicClassID=88://www.lemeizhai.com/search.asp?SearchType=Software&imageField.x=56&imageField.y=30&SearchKey=%B6%FE%B2%E3%B0%EB" target="_self" style="font-family: 楷体, 楷体_GB2312, SimKai; font-size: 24px; text-decoration: underline;">二层半别墅设计方案现代风格,这款别墅非常时尚好看和庭院是绝配,再种上几棵树。

别墅层数: 三层
别墅风格: 现代
占地面积:189㎡
开 间:15m
进 深:12.6m
建筑占地:15m×12.6m
建筑面积:241㎡
主体造价:32.0~37.0万
建筑结构:砖混结构
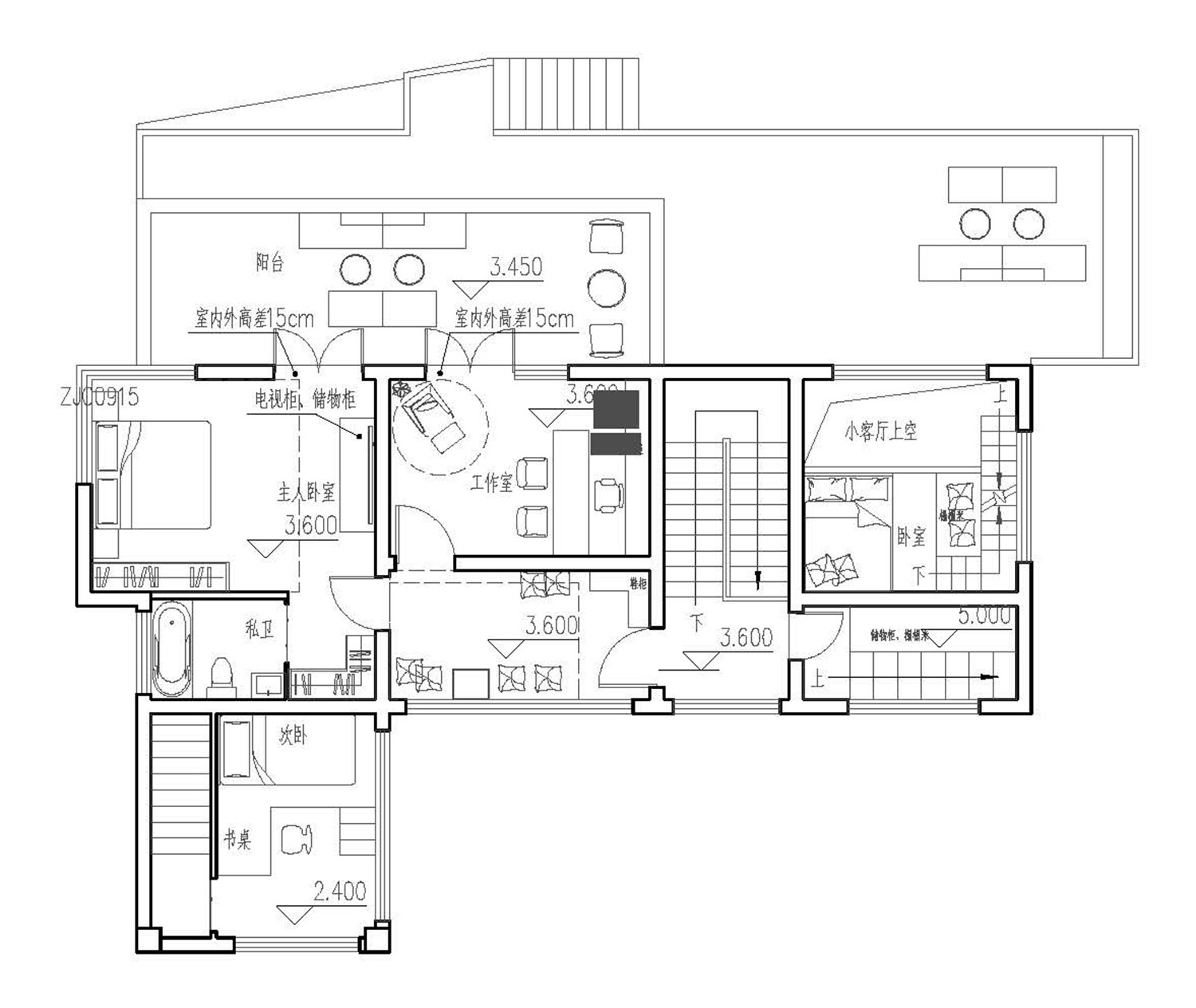
主体设计:

客厅、餐厅、厨房、卧室、公卫、阳台、露台。


。
转载请注明出自轩鼎别墅设计:://www.lemeizhai.com/index.asp