论什么风格的别墅最适合农村环境呢,当然是田园风格的别墅设计了。今天推荐一款欧式田园风格的="://www.lemeizhai.com/Picture.asp?PicClassID=88" target="_self" style="font-size: 24px; text-decoration: underline;">二层别墅设计方案,这款别墅没有花里胡哨的装饰,整体采用米黄色真石漆做装修,值得一说的是内部布局,虽说是二层但内部空间一点也不少,这别墅还有庭院,造价呢就不便宜了40多万。
,

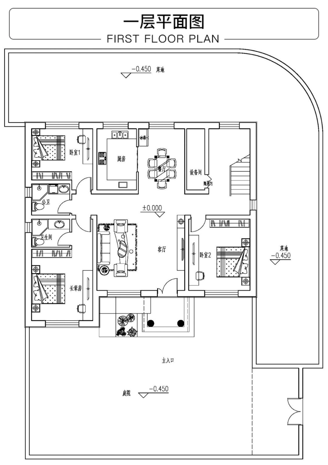
别墅层数: 二层
别墅风格: 欧式
占地面积:155㎡
开 间:13.3m
进 深:11.7m
建筑占地:13.3m×11.7m
建筑面积:280㎡
主体造价:39.8~44.8万
建筑结构:砖混结构


主体设计:

客厅、餐厅、厨房、卧室、公卫、阳台、露台。

。
转载请注明出自轩鼎别墅设计:://www.lemeizhai.com/index.asp