建房或买房都是需要大家综合家里情况而决定的,父母远住小区习不习惯,小孩读书放不方便,家里有没有车,家里的经济情况……如果上有老下有小的,经济水平又不高的,当然还是在村里建房比较实在,乡村自建别墅首先要有全套的建筑设计图纸,布置家具和厨卫设施等方案,户型是否合理一目了然。下面轩鼎建筑小编分享几款乡村自建别墅图。
第一款乡村自建房别墅方案图

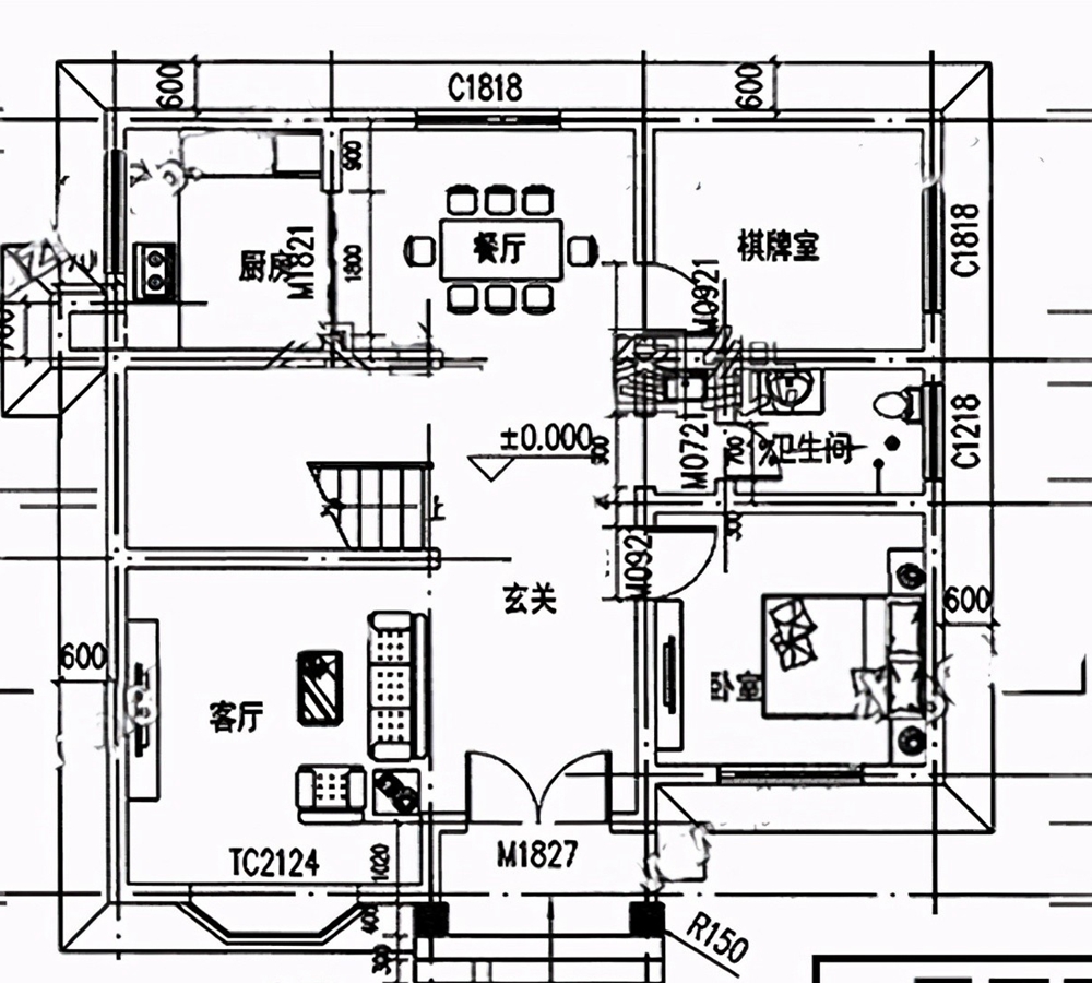
一层:玄关、客厅、餐厅、厨房、卧室、棋牌室、卫生间。带有玄关的设计,左侧是客厅,右侧是老人卧室。厨房和餐厅相邻设计,家人传菜和用餐都方便了许多。饭后,一家到棋牌室娱乐。

二层:小客厅、休息区、4卧室、阳台、卫生间。本层共有四间卧室的设计,可供家人的对房屋需求的选择。小的求休息区域,平时一起追剧聊天。

第二款乡村自建房别墅方案图

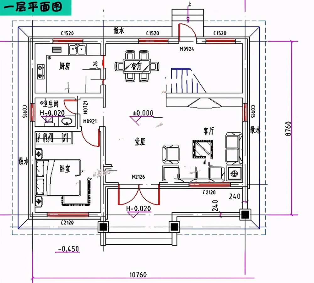
一层:堂屋、客厅、餐厅、厨房、卧室、卫生间。基本的生活布局空间,适合农村家庭建造的方案布局。

二层:休息厅、书房可以做卧室(带露台)、2卧室、卫生间、凉亭。从楼梯上来,是休息区,然后是两间卧室,这样一款100平左右的房子,三口之间居住起来非常的舒适。
