轩鼎小编会不定期与大家分享一些房屋设计平面图案例,欢迎大家一起来聊聊盖房建房的事情!
朋友们,好久不见,今天给大家带来一个500平高端豪宅房屋设计图平面图的分享,欢迎来交流~

本次轩鼎小编分享的是一个高端双拼房屋设计平面图,风格现代感大气,妥妥的壕宅~每栋别墅基地尺寸约为35*30米,每两栋通过入口大门连接,另一侧由景观院落分隔。别墅户型平面与之前分享过的不同,此别墅平面各功能间排布自由有机,使得空间流动,且具有美感。户型面积近500平,五室五厅,可谓壕无人性~
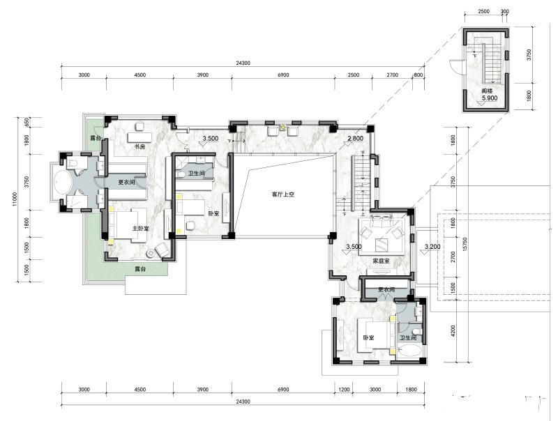
一层房屋设计平面图:

① 院落式入口温馨宜人,门厅处设更衣与卫生间,方便进出时的自我整理;
② 老人卧室设在一层,自带卫生间、更衣间;
③ 约7*8米的会客厅搬入家中,敞亮大气;客厅与正餐厅一起组成大横厅,保证10米的采光面,与精致的院落景观做对景,视野开阔,心情舒畅;
④ 厨房做中西厨分离,餐厅分早餐与正餐区别,满足不同需求;
⑤ 后勤人员做单独流线,且功能完备,设保姆房、卫生间、洗衣房等;
⑥ 另在厨房相近处,设半室外茶亭,与院落相互辉映,又是一番享受。

二层面积为207.85㎡:
① 从楼梯上二层后即可看到大气的通高客厅,在旁设家庭间,满足二层的公共休闲需求;
② 二层共设三个不同规模的卧室套房,其中总统级主卧约60㎡,包含卧室、书房、更衣间、卫生间,卧室、书房分别连通观景露台,也是专属的极致享受。
单独拿出几个细节我们来说说、
一中西双厨房

中西双厨是高端别墅设计才有的配置,满足多种生活方式的饮食需求,方便随意无缝切换,也可以满足多人同时操作,就算来了一大帮朋友,一起下厨展现手艺,也不会觉得空间不够。非常适合有多种不同生活习俗和爱好的家庭,特别适合广交朋友的家庭。
二庭院设计

此别墅的室外庭院精致、分区明确,餐厅客厅门厅及老人卧室包围庭院,均可与庭院产生对望,且水景、树景景色各有不同。
今天的房屋设计图平面图分享就到这里吧,欢迎大家联系轩鼎建筑小编,一起来聊聊建房,盖房的那些事事!