今天轩鼎建筑小编给大家推荐三套非常实用农村小别墅设计,外观简洁干净,没有繁琐的设计,室内布局实用舒适,成本造价经济实惠,农村施工队伍易施工,非常适合南方农村的朋友建房使用。
农村小别墅设计户型一
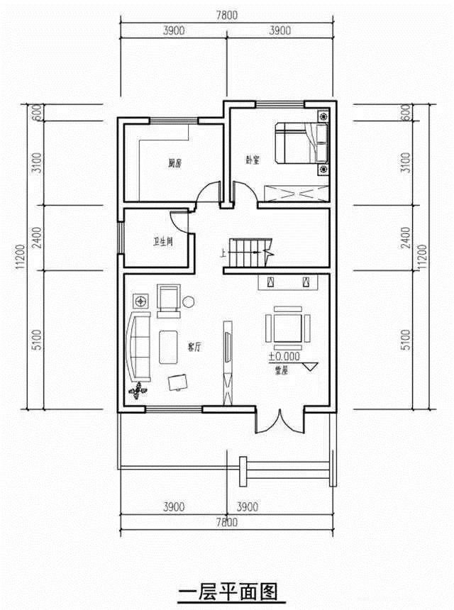
这款别墅开间7.8米,进深11.2米,两开间,适合农村宅基地较小的家庭建房。
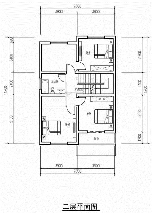
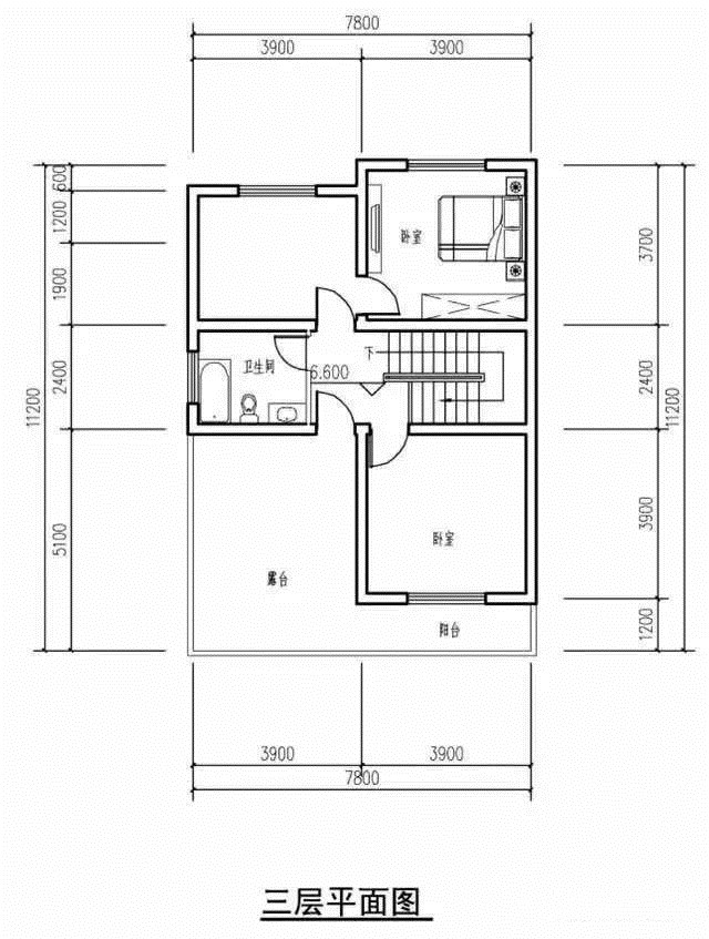
户型布局:虽然这套别墅占地面积不大,是一个小的宅基地,但是功能却齐全,一层设计有堂屋、客厅、卧室、厨房、卫生间;二层设计有三间卧室,一个卫生间和一个屋顶露台;二间卧室,一个卫生间和屋顶露台。一家人居住,非常的舒适。




农村小别墅设计户型二
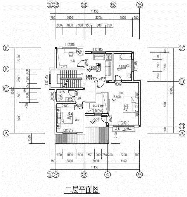
这款别墅开间11.5米,进深11.5米,三层并带车库设计,外观简洁实用,经典不过时的二段式立面设计。,顶楼有屋顶露台,可以作阳光房或者农村晾晒都是在合适不过了。

户型布局:一层布局功能齐全,车库、客厅、卧室、厨房餐厅卫生间都有。

二层主卧带衣帽间和卫生间,还有次卧、书房、起居室和卫生间。

三层设计有卧室、活动室、娱乐室、卫生间,还有一个大大的屋顶露台。
