很多地方都开始建小别墅了,人们的生活水平提高了,小别墅自然也就兴起了,一些国家的老百姓建别墅都不惊奇了,已经成了平常的事物了,未来我们这里也会这样。今天给大家推荐的是="://www.lemeizhai.com/Picture.asp?PicClassID=88" target="_self">二层别墅设计,这款别墅很养眼米黄色的外墙和立柱非常棒,别墅房间多不愁家里人多。

别墅层数: 二层
别墅风格: 欧式
占地面积:203㎡
开 间:15.2m
进 深:13.4m
建筑占地:15.2m×13.4m
建筑面积:342㎡
主体造价:50.0~55.0万
建筑结构:砖混结构



主体设计:

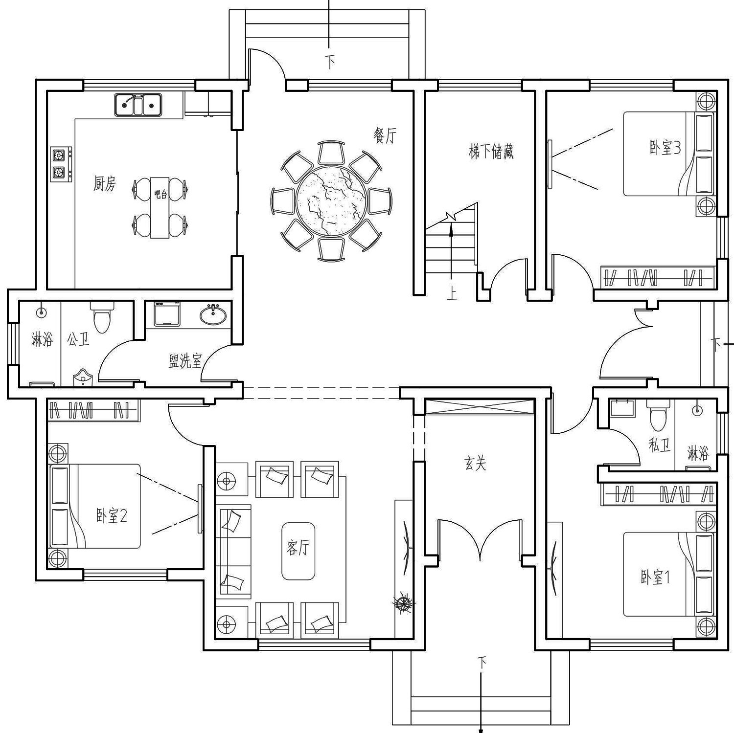
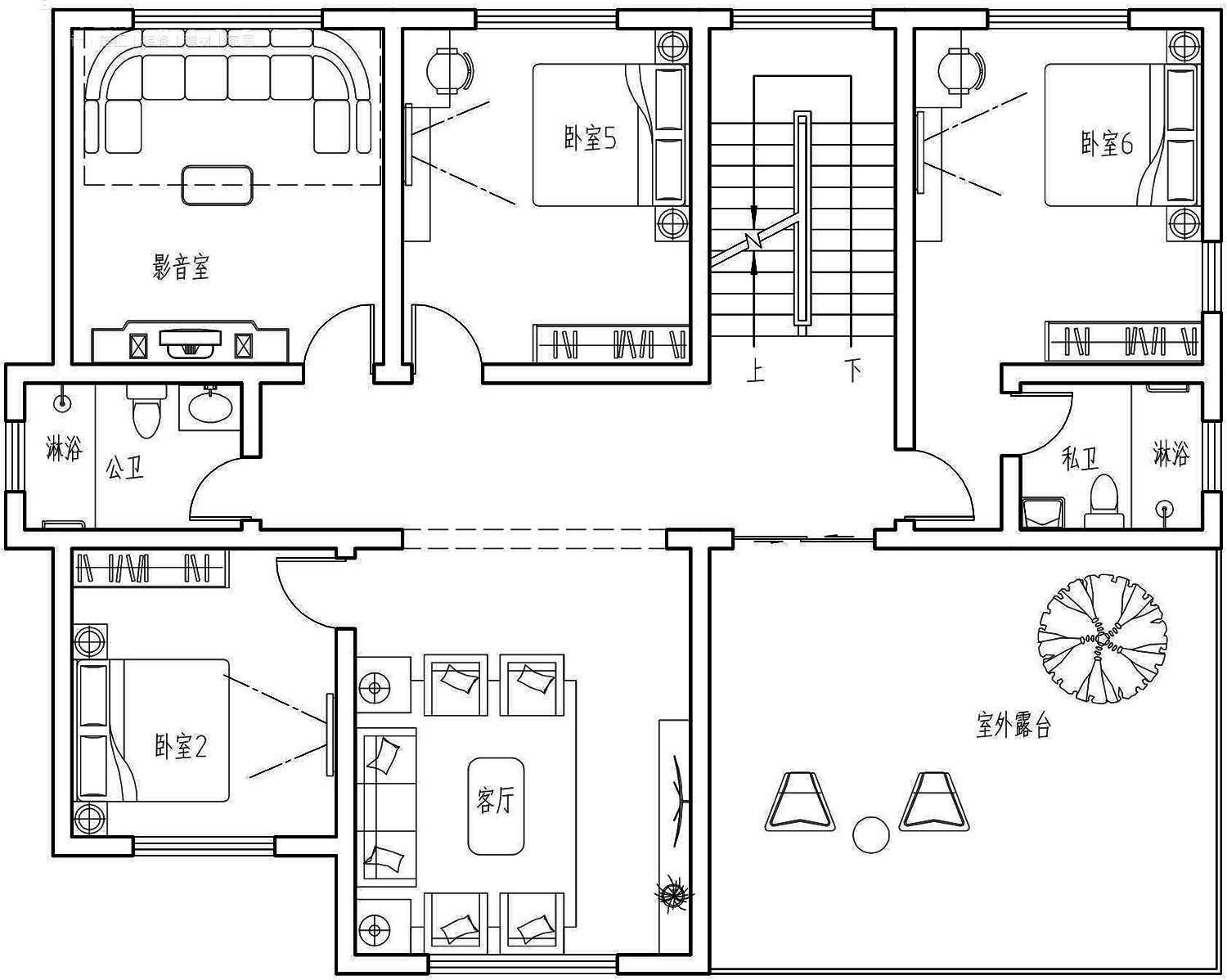
客厅、餐厅、厨房、卧室、公卫、阳台、露台。

。
转载请注明出自轩鼎自建房:://www.lemeizhai.com/