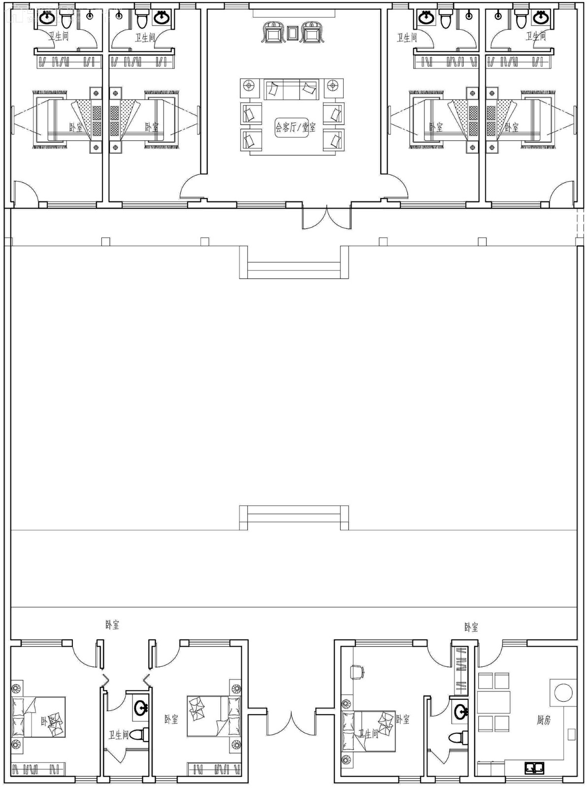
中式自建房非常适合农村的环境,中式风格的外表中国人几乎没有不喜欢的,白墙黑瓦非常清秀,不管什么样的形式几层的,="://www.lemeizhai.com/search.asp?SearchType=Software&imageField.x=43&imageField.y=33&SearchKey=%D0%C2%D6%D0%CA%BD" target="_self">中式别墅设计都可以。今天推荐一款中式一层农村自建房,有北屋南屋,庭院比较大,北屋中间是堂屋,卧室在两侧厨房设计在南屋最高造价50万

别墅层数: 一层
别墅风格: 中式
占地面积:606㎡
开 间:21.2m
进 深:28.6m
建筑占地:21.2m×28.6m
建筑面积:271㎡
主体造价:45.0~50.0万
建筑结构:砖混结构


主体设计:
客厅、餐厅、厨房、卧室、公卫、阳台、露台。

。
转载请注明出自轩鼎自建房:://www.lemeizhai.com/